Appartement T2 Neuf avec terrasse et parking en sous-sol
Fréjus 83600
0
A Fréjus, dans un secteur en plein développement en direction de CAIS, je vous propose ce T2 Neuf livré en novembre 2025 ! Visites possibles à partir du 1er décembre.
Vous souhaitez bénéficier des avantages du neuf sans la contrainte de devoir attendre de long mois ? Cet appartement est peut-être la solution que vous attendiez !
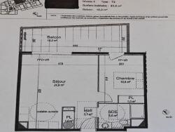
D'une superficie de 45.6m², il se compose d'une entrée, une pièce de vie ouverte sur la cuisine (à poser à votre goût), une salle d'eau moderne avec WC, une chambre avec placard et une superbe terrasse sans vis-à-vis de 15m² !
Pour un confort optimal, vous disposez d'une place de parking privative en sous-sol, accessible par l'ascenseur.
Idéal pour un investissement locatif, il est également optimal pour une résidence principale.
Sa situation géographique en fait un endroit stratégique : 2 min des écoles, 5 min du centre historique, 2 min des commerces, 5 min de la gare, 3 min du parc Aurélien, 9 min des plages.
Le bien comprend 2 lots, et il est situé dans une copropriété de 162 lots (les charges courantes annuelles moyennes de copropriété sont de 780 € et le syndicat des copropriétaires ne fait pas l'objet d'une procédure citée à l'article L. 721-1 du code de la construction et de l'habitation).
Les informations sur les risques auxquels ce bien est exposé sont disponibles sur le site Géorisques : www.georisques.gouv.fr
Prix de vente : 204 000 €
Honoraires charge vendeur
Contactez votre consultant megAgence : Samanta RANCAGNO, Tél. : 0783382850, E-mail : samanta.rancagno@megagence.com - EI - Agent commercial immatriculé au RSAC de FREJUS sous le numéro 921 526 364
45 m²
4 533 €
2
1
1
1
1
3
2025
Oui
Contact Marc Lelogeais
Contacter gratuitement à l'aide du formulaire ci-dessous.