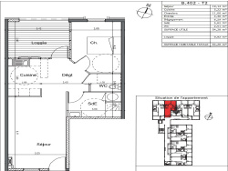
Appartement t2 Secteur Etang Abricot FDF Superficie 54.28 m2
Fort-de-France 97200
0
Votre agence Km immobilier à le plaisir de vous proposer à Etang Abricot à l'entrée de Fort De France une résidence récente de 2018 avec un espace paysagé et arboré., ascenseur sur R+4 au niveau des étages. Cette résidence possède un appartement T2 récent et disponible au derrnier étage. Ce bien immobilier d'une superficie habitable de 54.28 m2 avec 11 m2 de terrasse comprend un grand séjour, une cuisine aménagée, une chambres avec un placard, une salle d'eau, un wc indépendant. Idéal pour de l'investissement locatif ou résidence principale. Cet appartement est situé à proximité des commerces, des services, des restaurants et de la Marina.Une place de parking est vendu avec le logement. Charges annuelles : 1000 euros Nombre de lot : 84 lots Copropriété : Oui Procédure diligentés Syndic : non Ref Mandat 2168. Honoraire charge vendeur. Contactez votre conseiller Km immo pour visiter au 0694 357860 SAS KM IMMO Votre partenaire immobilier 0694 438822
54.28 m²
3 077 €
2
1
1
1
4
Oui
Oui
Oui
Oui
Oui
Oui (128 lots)
Contact CROSNIER Michael
Contacter gratuitement à l'aide du formulaire ci-dessous.