Appartement t2 Superficie 43 m2 Terrasse 13 m2 proximité Hôp
Le Lamentin 97232
0
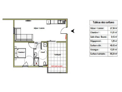
Retrouvez cet appartement t2 dans une résidence récente sur le quartier Bois Carré au Lamentin, au calme dans une impasse et en bordure de forêt, cet appartement de type 2 est situé au sein d'une résidence de 2020 avec ascenseur. Ces dimensions sont généreuses pour un appartement T2 d'une superficie totale habitable de 43 m2, un grand salon de 27 m2, une grande chambre de 12 m2 et une agréable terrasse de 13 m2 avec une place de parking privative. Sa situation géographique est exceptionnelle, proche de l'hôpital, du centre ville du lamentin, des commerces, restaurants et services. Copropriété : oui Nombre de lots : 82 Procédure diligentés syndyc : non Charges annuelles : 1500 euros Taxe foncière : 1300 euros Honoraire à la charge du vendeur. Référence mandat : 4 Contactez votre conseiller Km immobilier au 0694 357860 pour visiter rapidement ce bien exceptionnel. SAS KM IMMO Votre partenaire immobilier 0694 438822
46.43 m²
3 403 €
2
1
1
1
2019
Sud
Est
1
Oui (30 lots)
Contact KM Immobilier agence Montabo
Contacter gratuitement à l'aide du formulaire ci-dessous.