Honoraires à la charge de l'acquéreur (Prix hors honoraires : 0 euros).
Les charges de location sont prévisionnelles mensuelles avec régularisation annuelle.
La part des honoraires pour la réalisation de létat des lieux de ce bien est de 87 euros.
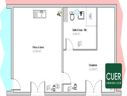
VALENCE - CHATEAUVERT - A louer appartement T2 rénové de 29m² situé au 1er et dernier étage d'un petit immeuble calme proche de la place de la paix. Cet appartement se compose d'une pièce de vie avec un espace cuisine, d'une chambre spacieuse et d'une salle d'eau rénovée. Chauffage individuel au gaz. Une cave complète ce bien. Disponible rapidement.
Honoraires de 432 TTC à la charge du locataire comprenant 87 TTC pour l'état des lieux. Loyer de base 480 /mois. Provision sur charges 20 /mois, régularisation annuelle. Dépôt de garantie 480 . Classe énergie E, Classe climat E Montant moyen estimé des dépenses annuelles d'énergie pour un usage standard, établi à partir des prix de l'énergie de l'année 2023 : entre 850.00 et 1200.00 . Les informations sur les risques auxquels ce bien est exposé sont disponibles sur le site Géorisques : georisques.gouv.fr.