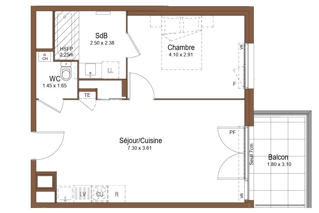
A la sortie du village, quartier du Marveran, découvrez ce bel appartement T3, d'envion 60m2, au 2ème et dernier étage avec ascenseur d'une résidence récente (2020) et sécurisée. Bénéficiez d'un environnement verdoyant et d'une vue dégagée sur les Monts du Beaujolais tout en étant à seulement 400m des commerces et des écoles.
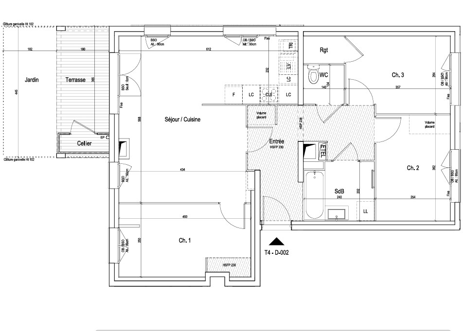
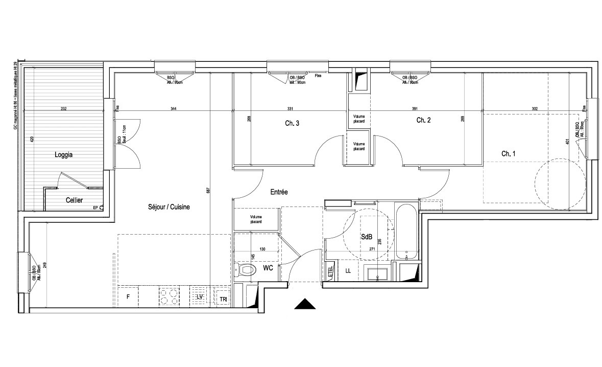
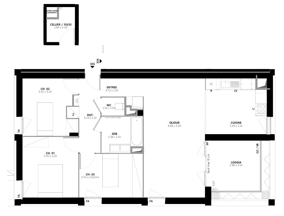
En retrait des axes de circulation, cet appartement lumineux se compose de : - un hall d'entrée avec placard - une pièce de vie avec cuisine équipée ouvrant sur une terrasse de 16m2 avec vue dégagée (exposition Sud et Ouest) - 2 chambres - une salle de bains - un WC - Un garage - un local à vélos est également disponible dans les communs
La commune de Villefranche et l'accès à l'autoroute A6 sont accessibles en 5 minutes en voiture.
Chauffage individuel au gaz de ville DPE C - GES C
Copropriété de 18 lots d'habitation Charges mensuelles : 105 EUR
Coup de coeur assuré, à visiter sans tarder
Contact : Marie GAUTHIER au O6 60 59 59 80 , statuts Agent immobilier titulaire de la carte professionnelle
60.53 m²
4 114 €
24 m²
3
2
1
1
2 sur 2
105 € / mois
2021
Sud
Ouest
Oui
1
1
Oui
Oui (22 lots)
Consommations énergétiques
Logement économe
95
Logement énergivore (kWhEP/m2/an)
Émissions de gaz à effet de serre
Faible émission de GES
18
Forte émission de GES(kgeqCO2/m2/an)
Contact GAUTHIER Marie
Contacter gratuitement à l'aide du formulaire ci-dessous.