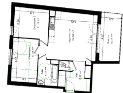
Découvrez cet appartement T3 d'une superficie de 61,27 m² au 3ème et dernier étage d'une résidence intimiste de standing idéalement située dans le quartier prisé du Moulin à Vent à Vénissieux.
Ce charmant appartement offre un cadre de vie agréable et pratique. Situé à proximité immédiate des commerces, écoles, transports en commun (tramway, bus) et des grands axes routiers, il est idéal pour une résidence principale ou un investissement locatif.
L'appartement dispose d'un séjour lumineux grâce
à son orientation Est/Ouest, une cuisine ouverte, deux chambres spacieuses, une terrasse confortable de 10,17 m². Possibilité garage en sus. Cet appartement vous offre des prestations modernes et de qualité à découvrir sans trop tarder !
Une opportunité à saisir ! N'hésitez pas à nous contacter pour plus d'informations ou pour organiser une visite.
Pour découvrir ce projet, contactez Loubna PAJKIN, au 0763410593 ou par courriel à l.pajkin@proprietes-privees.com
Selon l'article L.561.5 du Code Monétaire et Financier, pour l'organisation de la visite, la présentation d'une pièce d'identité vous sera demandée.
Cette vente est garantie 12 mois.
Prix 261 000 euros honoraires charge vendeur.
Cette présente annonce a été rédigée sous la responsabilité éditoriale de Loubna PAJKIN agissant sous le statut d'agent commercial immatriculé au RSAC LYON 838642106 auprès de la SAS PROPRIETES PRIVEES, au capital de 44 920 euros, ZAC LE CHÊNE FERRÉ - 44 ALLÉE DES CINQ CONTINENTS 44120 VERTOU; SIRET 487 624 777 00040, RCS Nantes. Carte professionnelle Transactions sur immeubles et fonds de commerce (T) et Gestion immobilière (G) n° CPI 4401 2016 000 010 388 délivrée par la CCI Nantes - Saint Nazaire. Compte séquestre n°30932508467 BPA SAINT-SEBASTIEN-SUR-LOIRE (44230) ; Garantie GALIAN - 89 rue de la Boétie, 75008 Paris - n°28137 J pour 2 000 000 euros pour T et 120 000 euros pour G. Assurance responsabilité civile professionnelle par MMA Entreprise n° de police 120.137.405
Mandat réf : 388941- Le professionnel garantit et sécurise votre projet immobilier.
Frais notariés réduits !
DPE + A / GES + A
COPRO DE 11 LOTS D'HABITATION.
Loubna PAJKIN (EI) Agent Commercial - Numéro RSAC : LYON 838642106 - .
61 m²
4 279 €
3
2
3 sur 3
Ouest
Oui
Contact Loubna PAJKIN
Contacter gratuitement à l'aide du formulaire ci-dessous.