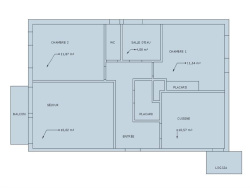
Bel appartement 2 chambres entièrment refait à neuf dans un petit immeuble calme de 8 appartements:Sols, murs, électricité, plomberie et menuiseries double vitrageLa classe énergétique a été établie avant les travaux.Les travaux seront terminés en avril et l'appartement sera donc disponible fin avril début mai.Il se compose :EntréeSéjour2 chambres dont 1 avec placardCuisine équipée (plaque, four, hotte, réfrigérateur, rangements)ToilettesSalle d'eauPlacardLoggia et balconChauffage individuel avec chaudière gazPlace de parking privéeCaveFrais d'agence réduits : 75 EUR - Annonce rédigée et publiée par un Agent Mandataire -
67 m²
16 m²
3
2
1
1
3 sur 3
75 %
1970
Ouest
Oui
Oui
Consommations énergétiques
Logement économe
309
Logement énergivore (kWhEP/m2/an)
Émissions de gaz à effet de serre
Faible émission de GES
67
Forte émission de GES(kgeqCO2/m2/an)
Contact DUCELLIER
Contacter gratuitement à l'aide du formulaire ci-dessous.