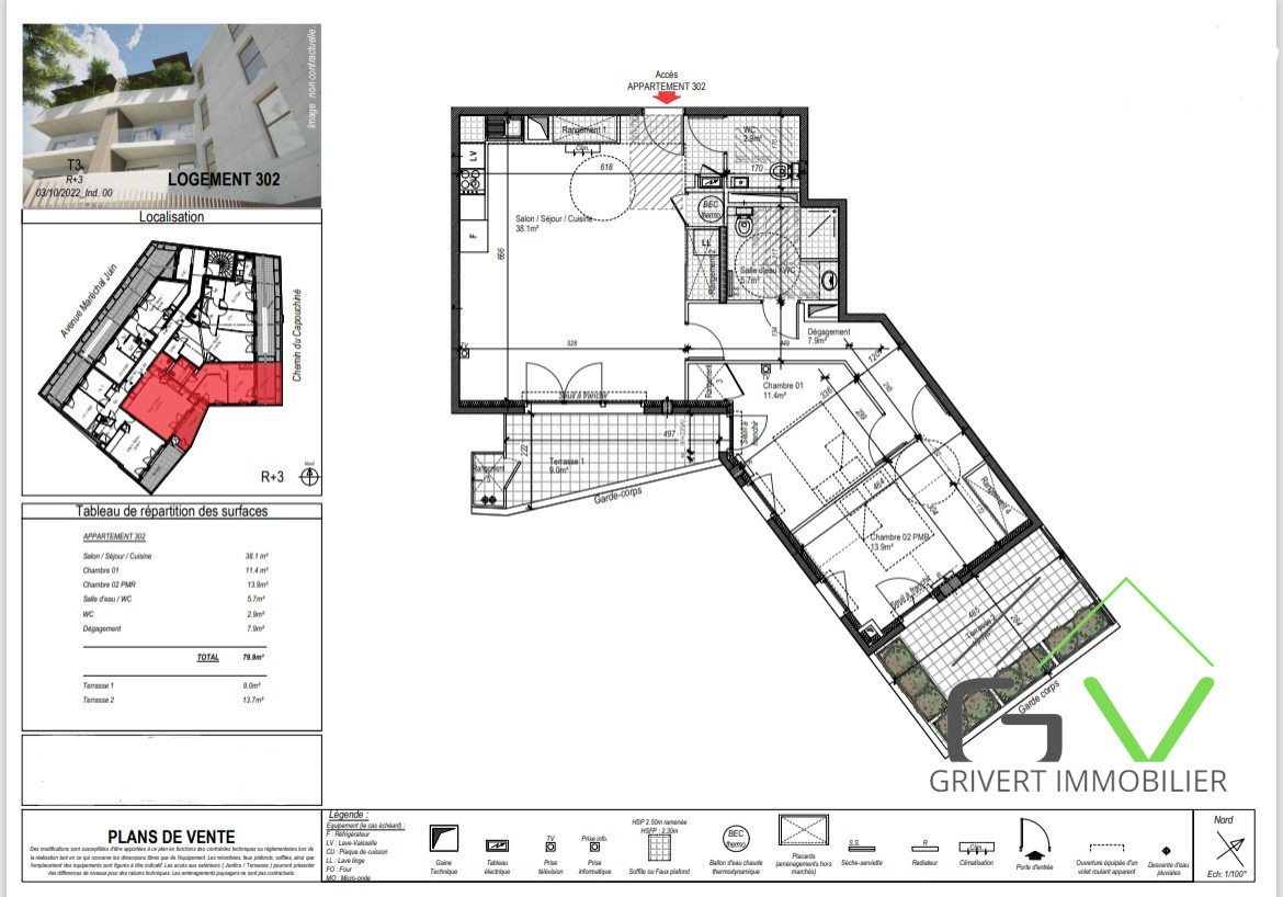
OFFRE DE LANCEMENT COMMERCIAL : FRAIS DE NOTAIRE OFFERTS POUR LES 12 PREMIERS LOTS ACTÉS Idéalement situé dans un quartier résidentiel calme et convivial, ce nouveau programme immobilier bénéficie d'un emplacement stratégique à Nîmes, proche des commodités et des grands axes. À seulement quelques minutes de l'avenue Jean Jaurès et des Jardins de la Fontaine, ce projet allie accessibilité et qualité de vie. Le centre-ville est rapidement accessible grâce à un arrêt Tram-Bus situé à 3 minutes à pied, et les grands axes (autoroutes et zones commerciales) sont à moins de 5 minutes en voiture. Cette réalisation propose 30 appartements, répartis sur 3 niveaux, du 2 au 5 pièces, avec terrasses, stationnements et caves privatifs. L'ensemble se compose de deux bâtiments à l'architecture contemporaine, reliés par un grand patio intérieur végétalisé. Des prestations pensées pour votre confort :Les logements traversants (T3, T4, T5) profitent d'une belle luminosité naturelle tout au long de l'année grâce à leurs grandes ouvertures et terrasses.Chaque appartement est équipé de menuiseries PVC avec double vitrage, volets roulants électriques, climatisation réversible par pompe à chaleur air-air, et d'un ballon thermodynamique individuel pour la production d'eau chaude.Le choix des matériaux a été soigné : carrelage 60x60 cm (pour les T3 à T5) et 45x45 cm (pour les T2), placards spacieux avec portes aux coloris élégants, selon vos envies.La résidence est sécurisée par un interphone numérique et un système VIGIK, et dispose d'un ascenseur desservant tous les étages. Ce programme est conforme à la réglementation environnementale RE2020, avec une application progressive des seuils 2022 à 2031. Éligible au Prêt à Taux Zéro (PTZ)Ce dispositif soutient l'accession à la propriété pour les primo-accédants sous conditions de ressources. Il permet de financer une partie de votre future résidence principale sans intérêts, à condition de ne pas avoir été propriétaire au cours des deux dernières années. Découvrez y un appartement T3 de 64.6m2 avec une terrasse de 12.9m2. Il est composé d'un séjour, d'une cuisine, de deux chambres, d'une salle de bains et d'un WC. Parking inclus dans le prix. Les avantages d'acheter un logement neuf avec PRODEOM :
oPrix direct promoteur : pas de frais d'agence. oFrais de notaire réduits entre 2 et 3% (contre 8% dans l'ancien). oPerformance énergétique conforme aux normes RE2020. oExonération partielle de la taxe foncière les premières années. oPossibilité de Prêt à Taux 0% d'intérêts bancaires jusqu'à la MOITIÉ du prix du bien (50%)
oMoins de charges et pas de travaux pendant au moins 15 ans. oGarantie de construction pendant 10 ans.
64 m²
4 891 €
13 m²
24 m²
3
2
1
1
3 sur 3
13/10/2027
2027
Est
1 (13 m²)
Oui
1
Oui
1
Consommations énergétiques
Logement économe
40
Logement énergivore (kWhEP/m2/an)
Émissions de gaz à effet de serre
Faible émission de GES
5
Forte émission de GES(kgeqCO2/m2/an)
Contact Prodeom Immobilier
Contacter gratuitement à l'aide du formulaire ci-dessous.