Cet appartement de 3 pièces est situé à la fois dans l'hypercentre et côté jardin de la résidence. Vue dégagée et sans vis-à-vis.
Son emplacement est idéal à proximité des commerces, des écoles. A cinq minutes à pied des transports en commun ligne RER C et trains N, U.
Base de loisir, Golf, centre aquatique, théâtre, universités, pistes cyclables, restaurants.
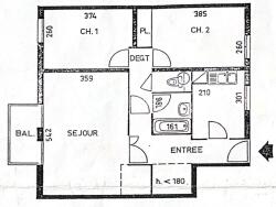
Ce bien est composé de :
- entrée
- cuisine équipé
- séjour donnant sur un balcon sud
- cellier
- deux chambres (dont une avec dressing)
- salle d'eau récente
- WC indépendant
Une cave et une place de parking privée complète ce bien.
Les plus :
- lumineux
- sans vis-à-vis
- voie piétonne
- rénové avec goût
- double vitrage
- chauffe eau 80L Sauter connecté
- copropriété à faible charges
Contactez-moi dès maintenant pour organiser une visite.
Bien soumis au statut de la copropriété, 35 logements, procédure en cours : aucune, 46 lots, Charges budget prévisionnel annuel 1 900 €.
Annonce publiée par Catherine Delaunay (EI) votre agent commercial en immobilier LF immo à Montigny-Le-Bretonneux, 78180 immatriculé au RSAC de versailles sous le n°819 384 579 000 28. Consultez nos tarifs sur le site LF immo.
Les informations sur les risques auxquels ce bien est exposé sont disponibles sur le site Géorisques : www.georisques.gouv.fr.
60 m²
4 650 €
3
2
1
1
1 sur 1
Équipée
Oui
Oui
Consommations énergétiques
Logement économe
213
Logement énergivore (kWhEP/m2/an)
Émissions de gaz à effet de serre
Faible émission de GES
6
Forte émission de GES(kgeqCO2/m2/an)
Contact Catherine Delaunay
Contacter gratuitement à l'aide du formulaire ci-dessous.