Honoraires à la charge de l'acquéreur (Prix hors honoraires : 286310 euros).
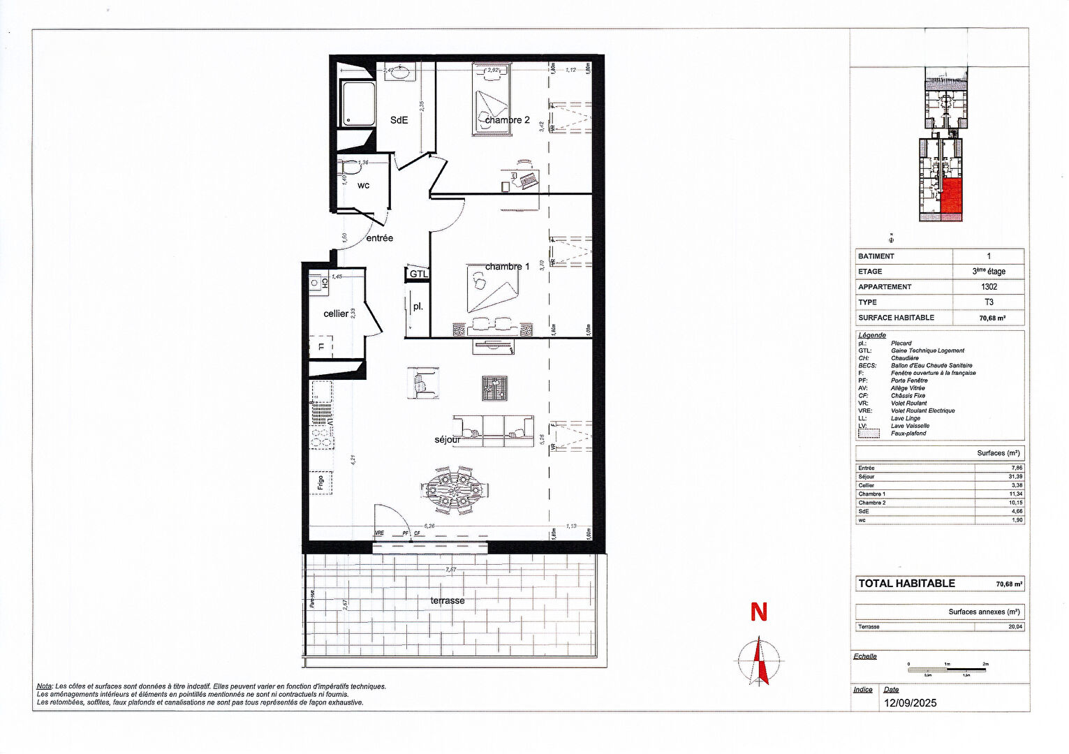
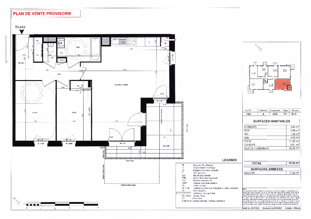
MONTFORT SUR MEU, proche centre, appartement situé au 3ème et dernier étage avec ascenseur, dans un nouvelle résidence en cours de rénovation de 14 logements, beau T3 de 83m² avec balcon exposé Est offrant pièce de vie avec cuisine aménagée et équipée, 2 chambres, salle d'eau, buanderie et WC, grenier de 18m² attenant . Une place de parking extérieur et un cellier viennent compléter ce bien. Livraison pour le 1er semestre 2027. Contactez nous pour découvrir les différents appartements disponibles du Type 2 au Type 4 ! Prix HAI 301 200 euros dont 5.2% d'honoraires d'agence inclus. MONTFORT SUR MEU, proche BEDEE, TALENSAC, BRETEIL, MORDELLES, BREAL SOUS MONTFORT est située à 20 minutes de RENNES OUEST, desservie par l'axe RENNES/ST BRIEUC et l'axe RENNES/LORIENT. Commune de 6 743 habitants. Commerces de proximité (supermarchés, boulangeries, pharmacies, restaurants...), un marché hebdomadaire le vendredi matin, un cinéma, une médiathèque, un centre culturel et de nombreuses associations sportives et culturelles. Ecoles maternelles et primaires, collèges et lycée. Moyen de transport : le train et le bus (ILLENOO). BROCELIANDE IMMOBILIER, 7 rue de Rennes, 35590 SAINT GILLES, 06.88.82.16.11 / 02.99.64.88.66. (5.20 % honoraires TTC à la charge de l'acquéreur.) Copropriété de 28 lots - dont 14 lots habitation.