Appartement T3 au premier et dernier étage avec terrasse et par
Léognan 33850
0
Honoraires à la charge du vendeur.
VOTRE NOUVEAU LOGEMENT AU DERNIER ÉTAGE ENTRE VILLE EN NATURE
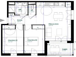
Situé en plein centre de Léognan, dans un environnement calme et résidentiel, cet appartement trois pièces bénéficie d'un emplacement privilégié, à proximité immédiate des commerces, écoles, transports et services du quotidien. Il se trouve au premier et dernier étage d'un petit bâtiment à taille humaine, garantissant tranquillité et intimité.
Dès l'entrée, vous serez séduit par une spacieuse pièce de vie baignée de lumière, grâce à une double orientation qui offre une belle luminosité naturelle tout au long de la journée. Cet espace chaleureux se prolonge par une agréable terrasse d'environ 7 m², idéale pour profiter des beaux jours en toute sérénité, que ce soit pour un café le matin ou un dîner en extérieur. L'espace nuit se compose de deux belles chambres, toutes deux équipées de placards intégrés, offrant des rangements pratiques et bien pensés. Une salle d'eau moderne ainsi qu'un WC indépendant viennent compléter ce bien parfaitement agencé, sans perte de place.
Pour plus de confort au quotidien, deux places de parking privatives sont vendues avec l'appartement (6 000/place soit 12 000 en sus obligatoire). Ce bien conviendra aussi bien à une résidence principale qu'à un investissement locatif, grâce à sa situation centrale et ses prestations fonctionnelles.
VOTRE NOUVEAU LOGEMENT AU DERNIER ÉTAGE ENTRE VILLE EN NATURE
Honoraires à la charge du vendeur. Dans une copropriété de 45 lots. Aucune procédure n'est en cours. DPE en cours. Les informations sur les risques auxquels ce bien est exposé sont disponibles sur le site Géorisques : georisques.gouv.fr.