Bienvenue dans votre futur chez-vous ! Nous sommes ravis de vous présenter cet appartement de 3 pièces, qui vous offrira un cadre de vie agréable et fonctionnel. Situé au 2ème étage d'une résidence édifiée en 1970, découvrez ce bien en parfait état d'entretien !
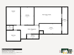
Découvrez l'intérieur : - Spacieuse entrée avec placard - Séjour - salon avec balcon - Cuisine aménagée (ouverture possible sur la pièce de séjour) - Deux chambres - Salle d'eau avec rangements - Wc indépendant - Débarras
Espaces extérieurs : - Balcon offrant une vue arborée - Résidence avec espaces verts et jeux pour enfants - Stationnements au coeur de la résidence pour 7/mois
Côté confort : - Résidence sécurisée - Double vitrage PVC et volets roulant électriques - Bonne classification du DPE - Nombreux rangements et cave
L'emplacement : Situé dans le quartier de la Madeleine, vous apprécierez la proximité des commodités : crèches, maternelles, écoles élémentaires, collèges et commerces se trouvent à 10 min à pied. Vous rejoindrez le centre ville de Chartres en moins de 10 minutes en voiture.
N'hésitez pas à contacter votre agent au Noeud Pap' pour obtenir plus d'informations et visiter cet appartement !
Honoraires à la charge du vendeur. Dans une copropriété de 160 lots. Quote-part moyenne du budget prévisionnel 2 832 /an. Aucune procédure n'est en cours. Classe énergie C, Classe climat B Montant estimé des dépenses annuelles d'énergie pour un usage standard : entre 716.00 et 968.00 sur les années 2021, 2022 et 2023 (abonnements compris). Les informations sur les risques auxquels ce bien est exposé sont disponibles sur le site Géorisques : georisques.gouv.fr.