SIXTINE IMMOBILIER a le plaisir de vous présenter en exclusivité cet appartement de type T3 déployant 77 m2 avec balcon sur la commune de Bourgoin Jallieu 38300
Laissez vous charmer par ce cadre de vie relaxant proche du Bion, où calme et verdure vous permettent de vous sentir comme à la campagne tout en profitant des commodités de la ville.
Dans cette copropriété de 2008 sécurisée par un portail automatique et digicode à l'entrée, vous aurez la chance d'avoir deux moyens de stationnement, une place de parking et un garage fermé automatisé idéal les jours de pluie.
Depuis le deuxième étage (immeuble de trois étages avec ascenseur) vous aurez une vue parfaite du bacon sur les collines environnantes plus agréable que la vue de centre ville. Celui ci mesurant 10 m2, vous donne l'opportunité de profiter des belles journées ensoleillées en été comme en hiver.
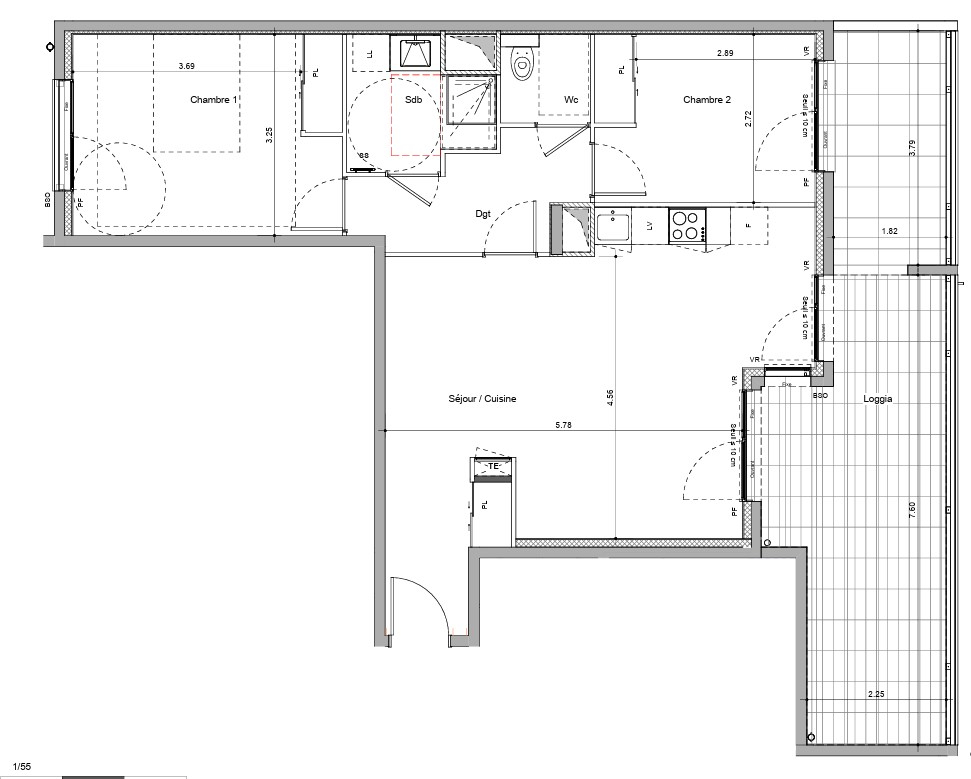
La configuration de l'appartement est optimal puisque nous avons deux espaces bien définis séparés par une porte, le coté nuit est composé de deux chambres avec placards aménagés, d'un toilette indépendant ainsi qu'un espace sanitaire avec bain et douche permettant aux petits et grands de trouver leur bonheur.
Concernant l'espace jour, il est baigné de lumière grâce à la luminosité de la baie vitrée, plein sud et l'agencement fonctionnel permet de disposer de deux espaces salon et coin repas distinct. Vous jouirez aussi d'une cuisine de 12 m2 entièrement aménagée semi ouverte sur le coin repas.
Une fois terminé de manger vous n'aurez plus qu'un pas à faire pour vous reposer sur le balcon et écouter le Bion s'écouler.
Pour le coté technique, le chauffage est commandé par une chaudière gaz individuelle, et la chaleur est répartie par radiateur.
Vous l'aurez compris, cet appartement est une véritable opportunité d'acquérir un bien sans travaux, fonctionnel et calme.
Maxime se fera un plaisir de vous faire découvrir cette petite sur la commune de Bourgoin Jallieu, contactez le au O6 43 65 56 46
Honoraires à la charge du vendeur. Dans une copropriété de 18 lots. Aucune procédure n'est en cours. Classe énergie C, Classe climat C Montant estimé des dépenses annuelles d'énergie pour un usage standard : entre 854.00 et 1157.00 sur les années 2021, 2022 et 2023 (abonnements compris). Les informations sur les risques auxquels ce bien est exposé sont disponibles sur le site Géorisques : georisques.gouv.fr.