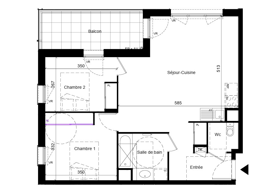
15 minutes de Saint Symphorien sur coise, bel appartement lumineux de 65.70 m², avec son profond balcon de 7.53 m², comprenant une entrée avec placard, d'un vaste séjour sur cuisine ouverte (équipement en option), deux chambres, salle de bains avec baignoire (douche possible) et meuble vasque, wc séparé, ainsi qu'une place de parking. Accessibilité personnes à mobilité réduite.
Construction RT 2012, chauffage individuel au gaz, normes PMR, accès sécurisé par badge Vigik, fibre avec prises RJ45, dans une résidence à taille humaine, à proximité des commerces et écoles, livraison 4ème trimestre 2025, frais de notaire réduits.
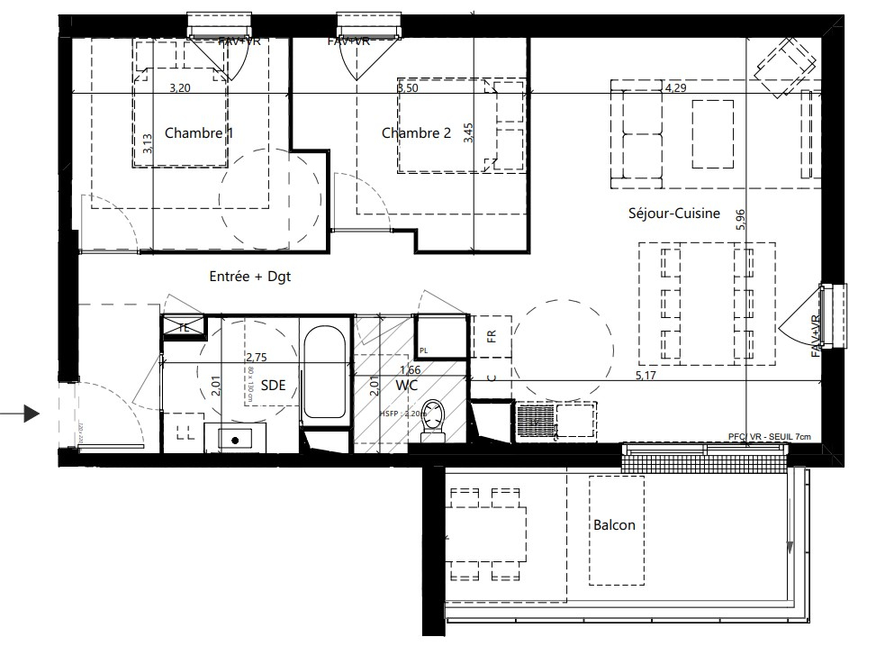
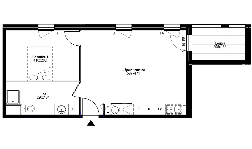
D'autres configurations sont encore disponibles, du T2 au T3, la conception des logements privilégie la lumière et les espaces !
Vous souhaitez devenir investisseur ? Réalisez ici un investissement durable dans un coeur de bourg attractif aux portes du Grand Lyon. Rentabilité brute 4.5%.
Honoraires à la charge du vendeur. Dans une copropriété de 65 lots. Aucune procédure n'est en cours. Non soumis au DPE. Les informations sur les risques auxquels ce bien est exposé sont disponibles sur le site Géorisques : georisques.gouv.fr.
Votre conseiller BELimmobilier : Responsable d'agence - Aurore FOUILLET Carte T CPI690120216000010779
65.7 m²
3 044 €
8 m²
3
2
1
1
1 sur 2
Est
Nord
1 (8 m²)
Oui
1
Oui (65 lots)
Contact Aurore FOUILLET
Contacter gratuitement à l'aide du formulaire ci-dessous.