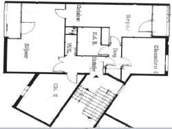
T3 de 64 m² situé au 1er étage sans ascenseur proche école, commerces, transports urbains et à 5 minutes en voiture de Decazeville (12300).
A votre disposition : séjour avec balcon, cuisine séparée donnant sur un balcon, placard dans l'entrée, salle d'eau avec baignoire, 2 chambres, wc séparé, cave.
Chauffage collectif gaz ?parking commun.
Loyer mensuel HC : 388.31€ + charges mensuelles : 226.27€ (acomptes : chauffage, eau chaude, eau froide, taxe ordures ménagères, ménage, espaces verts...)
Logement conventionné avec possibilité d'APL.
Pas de frais d'agence / Disponible de suite.
64 m²
3
2
1
1 sur 2
Oui
Contact Agence Decazeville AVEYRON HABITAT
Contacter gratuitement à l'aide du formulaire ci-dessous.