DOUBLE EXPOSITION, LOGGIA ET PARKING - VOTRE FUTUR APPARTEMENT À MÉRIGNAC VOUS ATTEND
Situé à seulement quelques minutes du centre-ville de Mérignac (33700), cet appartement T3 offre un cadre de vie agréable, à proximité immédiate des commerces, des écoles, des transports (tram A, bus) ainsi que des espaces verts.
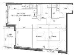
L'appartement se trouve au sein d'une résidence bien entretenue et sécurisée. Dès l'entrée, vous serez accueilli par un hall doté d'un placard de rangement pratique et de toilettes indépendantes. La pièce de vie, spacieuse et lumineuse, bénéficie d'une double orientation qui apporte une belle luminosité naturelle tout au long de la journée. Cet espace de vie se prolonge sur une loggia, idéale pour profiter d'un coin extérieur abrité. La partie nuit se compose de deux chambres confortables, offrant calme et intimité, ainsi que d'une salle de bain fonctionnelle.
Une place de parking privative vient compléter ce bien, un atout rare et apprécié dans ce secteur.
Cet appartement est idéal pour un premier achat, un investissement locatif ou pour toute personne souhaitant vivre dans un environnement paisible tout en restant proche de toutes les commodités urbaines de Mérignac.
DOUBLE EXPOSITION, LOGGIA ET PARKING - VOTRE FUTUR APPARTEMENT À MÉRIGNAC VOUS ATTEND
Honoraires à la charge du vendeur. Dans une copropriété de 52 lots. Aucune procédure n'est en cours. DPE en cours. Les informations sur les risques auxquels ce bien est exposé sont disponibles sur le site Géorisques : georisques.gouv.fr.