Appartement T3 Balcons Cave Parking Piscine Mérignac centre
Mérignac 33700
0
Honoraires à la charge du vendeur.
Appartement T3 Balcons Cave Parking Piscine Mérignac centre
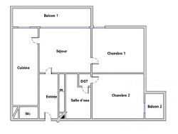
Découvrez ce bel appartement T3, situé au 4ème étage d'un immeuble bien entretenu. Avec une surface habitable de 60 m², cet appartement offre deux chambres spacieuses de 11,5 et 13,5m², une cuisine équipée de 11m² et d'une pièce de vie de 15m². Les deux balcons, d'une surface totale de 8 m², vous offrent une vue dégagée. Construite en 1975, cette résidence bénéficie d'un ascenseur pour votre confort quotidien. L'appartement ainsi que les communs sont bon état. Aucune procédure en cours et la piscine de la résidence est en train d'être rénovée afin d'être prête pour cet été !Pour compléter ce bien, vous bénéficierez également d'une cave de 3m² ainsi que d'une place de parking. Situé dans le centre de Mérignac, vous aurez directement accès à toutes les commodités: tram, bus, commerces, établissements scolaires. Pour plus d'informations, veuillez contacter Florent Délétoile.
Honoraires à la charge du vendeur. Dans une copropriété de 160 lots. Quote-part moyenne du budget prévisionnel 1 300 /an. Aucune procédure n'est en cours. Classe énergie C, Classe climat C Montant moyen estimé des dépenses annuelles d'énergie pour un usage standard, établi à partir des prix de l'énergie de l'année 2021 : entre 541.00 et 732.00 . Les informations sur les risques auxquels ce bien est exposé sont disponibles sur le site Géorisques : georisques.gouv.fr.