Honoraires à la charge de l'acquéreur (Prix hors honoraires : 150000 euros).
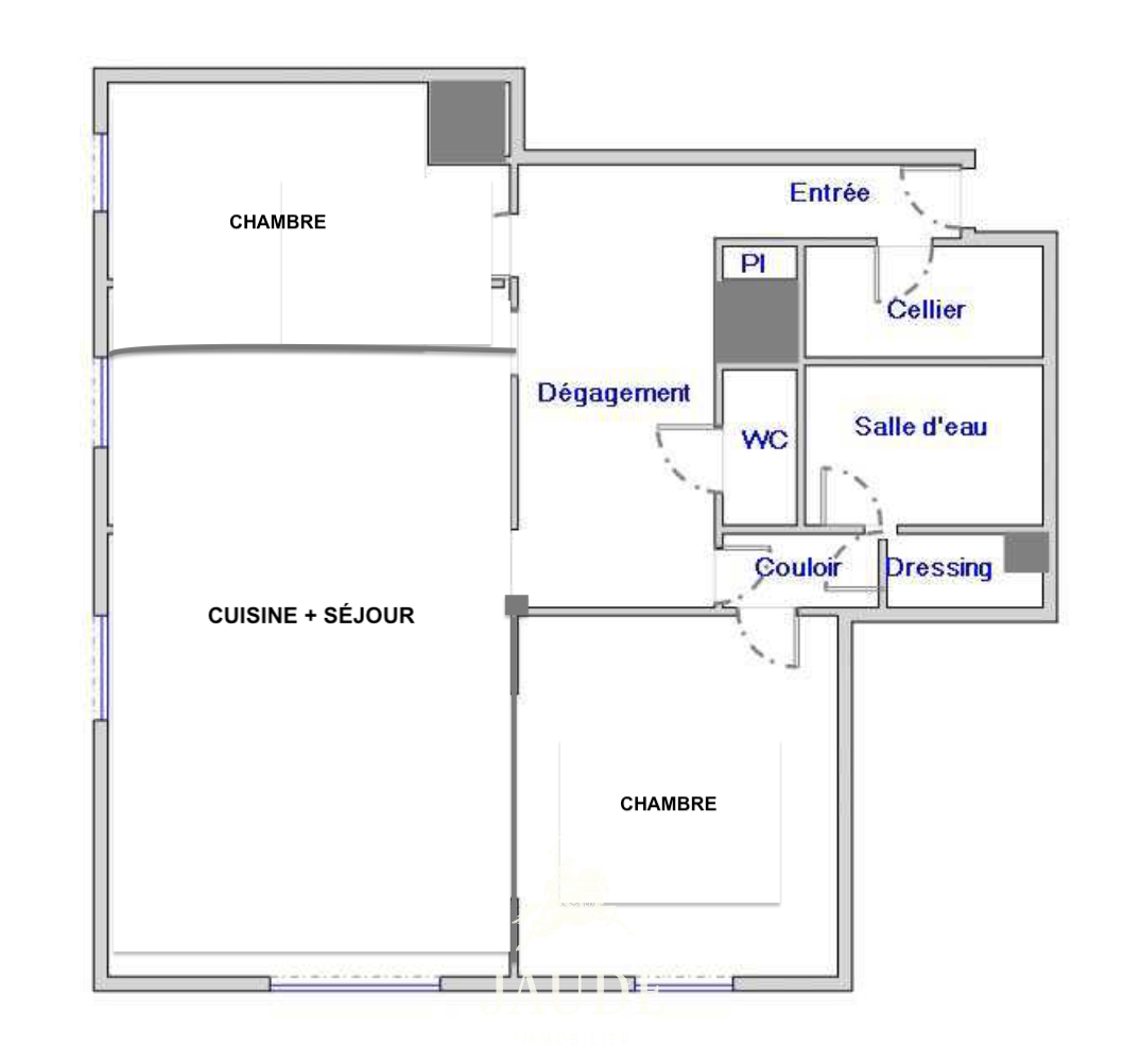
L'agence 1465 Immo vous propose dans une petite résidence sécurisée, au premier étage ce lumineux appartement de plus de 75 m2, avec un balcon, une cave et un garage. Il se compose d'une entrée, d'une cuisine indépendante meublée, d'une buanderie, d'une vaste pièce à vivre lumineuse de 26m2 donnant accès sur un petit balcon, de 2 chambres (possibilité 3), d'une salle d'eau et de toilettes séparées avec lave-mains. En sus une cave et un grand garage viennent compléter ce bien.
Plus d'informations sur votre futur bien : Chauffage individuel au gaz Charges mensuelles de copropriété : 47EUR par mois Copropriété sécurisée, syndic bénévole Double vitrage Taxe foncière : 1083 EUR par an Nombre de lots : 4 lots principaux Pas de procédure en cours Prix de vente du bien TTC : 159 000 EUR honoraires d'agence inclus dont 9 000 EUR d'honoraires à la charge de l'acquéreur. Consommation conventionnelle : 279 kWh ep/m2.an (Classe E) Estimation des émissions : 61 kg eqCO2/m2.an (Classe E) Estimation des coûts annuels : entre 1 860 EUR et 2 570 EUR par an, prix moyen des énergies indexées sur les années 2021, 2022, 2023. Toutes les informations sur les risques auxquels sont exposés ce bien sur le site : http://www.georisques.gouv.fr
Cet appartement se situe quartier LAVOISIER/ SAINT-ALYRE / MAISON DES SPORTS, à quelques minutes à pied de Saint-Alyre, des commerces, arrêt de bus devant l'immeuble...et de la place de JAUDE.
Cet appartement saura vous séduire à coup sûr ! Idéal pour un achat en résidence principale ou pour un investissement locatif (très bonne rentabilité pour une collocation 3 chambres possibles)
75.13 m²
2 116 €
25 m²
3
2
1
1
1 sur 2
6.00 %
1949
Sud
Nord
Oui
1
Oui
Oui (4 lots)
Consommations énergétiques
Logement économe
279
Logement énergivore (kWhEP/m2/an)
Émissions de gaz à effet de serre
Faible émission de GES
61
Forte émission de GES(kgeqCO2/m2/an)
Contact 1465 Immo
Contacter gratuitement à l'aide du formulaire ci-dessous.