Honoraires à la charge de l'acquéreur (Prix hors honoraires : 91500 euros).
Appartement T3 loué Cazères (31)
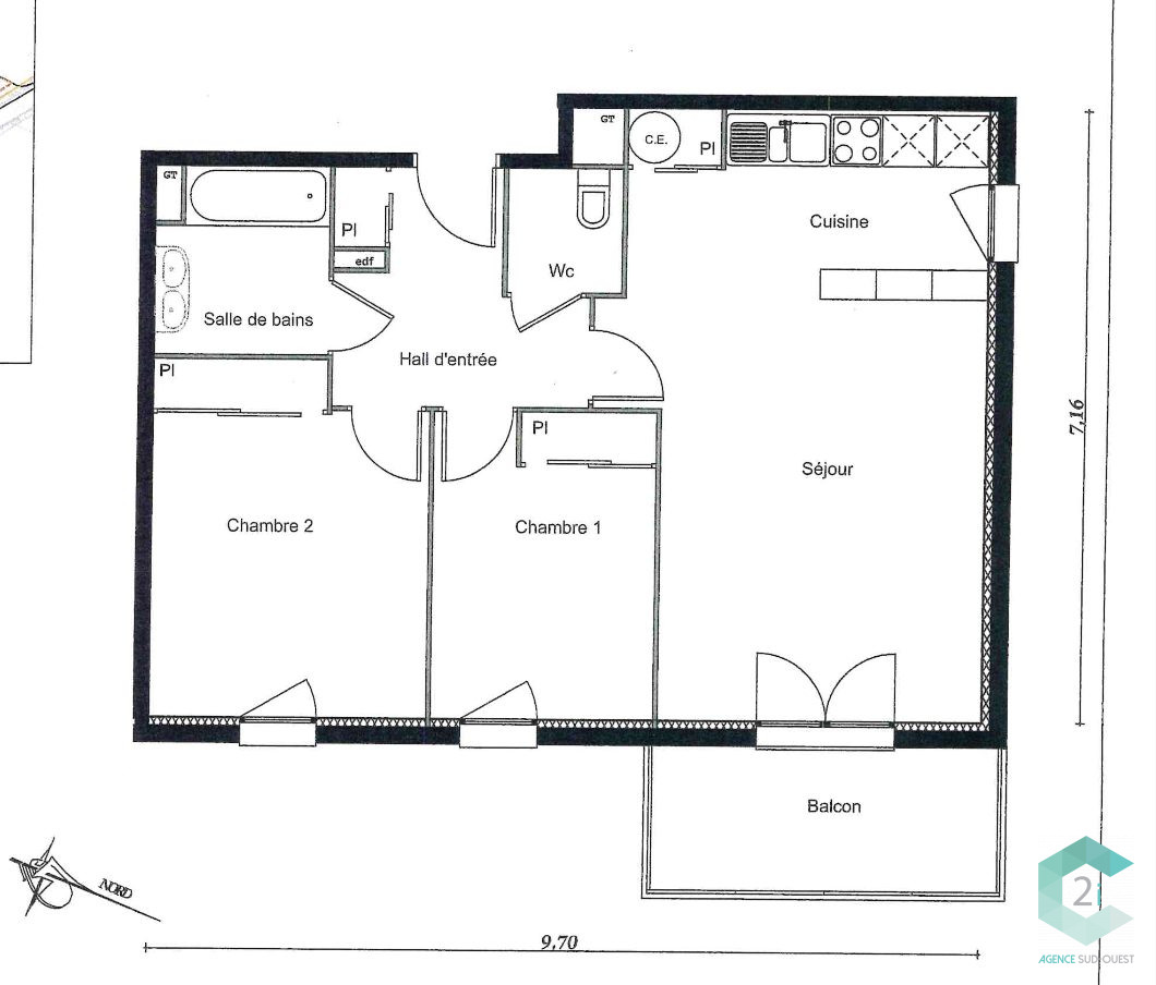
Situé dans une résidence calme et entretenue avec portail sécurisé, cet appartement T3 de 54,42 m² est vendu loué, offrant un revenu locatif immédiat.
Il comprend une entrée avec placard, deux chambres de 10 m² avec rangements, une salle de bain, des toilettes séparées, ainsi qu'un séjour lumineux de 25 m² avec espace cuisine ouvert, donnant sur un balcon-terrasse.
Informations financières : Loyer actuel : 482,22 HC + 65 de charges Taxe foncière : 614 (2025) Charges de copropriété : env. 1 016 / an (moyenne sur les 4 dernières années) L'appartement est également vendu avec deux places de parking extérieures.
Fin de bail en mai 2027.
Contactez-nous
Honoraires inclus de 9.18% TTC à la charge de l'acquéreur. Prix hors honoraires 91 500 . Dans une copropriété de 252 lots. Aucune procédure n'est en cours. DPE en cours. Les informations sur les risques auxquels ce bien est exposé sont disponibles sur le site Géorisques : georisques.gouv.fr.
54.42 m²
1 836 €
9 m²
3
2
1
1 (séparé)
1 sur 1
9.18 %
2006
1 (9 m²)
2
Oui (252 lots)
Contact C2i SUD OUEST
Contacter gratuitement à l'aide du formulaire ci-dessous.