Honoraires à la charge de l'acquéreur (Prix hors honoraires : 200000 euros).
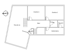
En exclusivité chez VILLADICI : En plein coeur de Pont-l'Abbé, découvrez ce charmant appartement T3 de 79 m² plein de lumière, situé au deuxième étage d'un immeuble de caractère (sans ascenseur) au bord de la rivière. L'accès se fait par un hall d'entrée au premier étage, puis une volée d'escalier vous mène à ce cocon chaleureux. Dès l'entrée, on apprécie le couloir qui conduit vers un vaste salon-séjour de 35 m² avec cuisine ouverte, baigné de lumière, parfait pour partager des instants conviviaux en famille ou entre amis. Côté nuit, deux chambres confortables de 10 m² et 12 m² offrent de jolis espaces reposants. Une salle de bain et un toilette séparé complètent l'ensemble. Et pour allier confort et praticité, l'appartement bénéficie de deux emplacements privatifs, un véritable atout en plein centre-ville ! Entre dynamisme et douceur de vivre, ce T3 est une belle opportunité pour profiter pleinement du charme de Pont-l'Abbé, avec tous les commerces et services à proximité immédiate. Pour tout complément d'information ou visite Typhaine DOYEN est à votre disposition au 06.29.86.39.19. Agent commercial indépendant N° 841 424005 RSAC Quimper --- Les informations sur les risques auxquels ce bien est exposé sont disponibles sur le site Géorisques : https://www.georisques.gouv.fr (6.10 % honoraires TTC à la charge de l'acquéreur.) Copropriété de 19 lots - dont 9 lots habitation. (Pas de procédure en cours). Charges annuelles : 2040 euros. TYPHAINE DOYEN (EI) Agent Commercial - Numéro RSAC : 84142400500012 - .