EG AGENCY vous propose à la vente, situé allée des pins (13009), au sein d'une résidence fermée, sécurisée et bien entretenue, à proximité immédiate des commerces, établissements scolaires, transports en commun et du futur tramway.
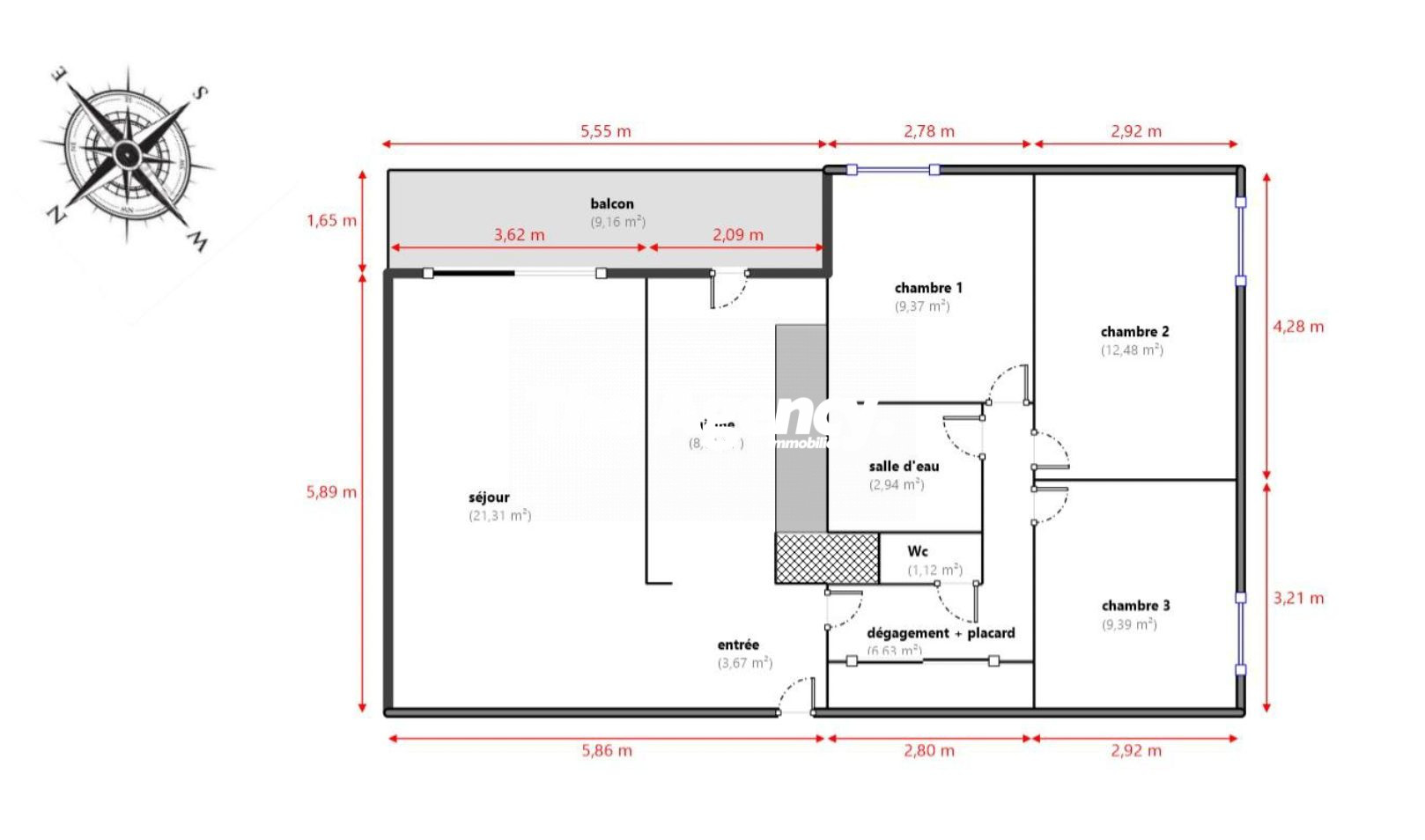
Appartement T3 d'environ 70 m², situé au 3? étage avec ascenseur, au sein d'un immeuble sécurisé. Le bien se compose d'un séjour lumineux de 18,14 m² ouvrant sur un extérieur de 12,66 m² avec vue dégagée, d'une cuisine indépendante et équipée de 12,06 m², de deux chambres de 10,92 m² et 9,62 m², d'un dressing de 1,78 m², d'une salle de bains de 5,03 m², ainsi que de WC séparés.
L'appartement bénéficie de beaux volumes et d'une distribution fonctionnelle, offrant un cadre de vie agréable dans un environnement calme et prisé du 9? arrondissement.
Une cave vient compléter la vente de ce bien.
Les charges de copropriété sont de : 325 euros / mois, comprenant l'entretien des parties communes, l'entretien des espaces verts, l'eau froide, l'eau chaude, le chauffage, l'ascenseur, le gardien, sécurité, fonds de travaux loi ALUR ainsi que les honoraires du syndic.
Possibilité d'acheter une place de parking en sous sol en sus pour 15 750 euros
Honoraires à la charge du vendeur. Dans une copropriété de 606 lots. Aucune procédure n'est en cours. Classe énergie D, Classe climat D Montant estimé des dépenses annuelles d'énergie pour un usage standard : entre 1070.00 et 1500.00 sur les années 2021, 2022 et 2023 (abonnements compris). Les informations sur les risques auxquels ce bien est exposé sont disponibles sur le site Géorisques : georisques.gouv.fr.
70 m²
2 857 €
3
2
1
1 (séparé)
3 sur 17
325.47 € / mois
1968
Oui
Oui
1
1
Oui
Oui (606 lots)
Consommations énergétiques
Logement économe
196
Logement énergivore (kWhEP/m2/an)
Émissions de gaz à effet de serre
Faible émission de GES
42
Forte émission de GES(kgeqCO2/m2/an)
Contact Eythan GOURION
Contacter gratuitement à l'aide du formulaire ci-dessous.