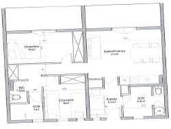
Situé sur la commune de Grimaud, dans une résidence sécurisée avec piscine et parc paysager, appartement T3 de 55,86 m2 loi Carrez en rez-de-jardin avec 2 terrasses. Entrée avec placards et cabine , séjour avec coin cuisine équipée, 2 chambres avec rangements, salle de bains, salle d'eau, 2 wc 2 places de stationnements privatifs Idéal investissement locatif DPE D / GES B Les informations sur les risques auxquels ce bien est soumis sont disposnibles sur les ite Géorisques : www.georisques.gouv.fr
55.86 m²
5 353 €
17 m²
3
2
1
1
2
2000
Ouest
Nord
2
2
Oui
Oui
Oui (2 lots)
Consommations énergétiques
Logement économe
205
Logement énergivore (kWhEP/m2/an)
Émissions de gaz à effet de serre
Faible émission de GES
6
Forte émission de GES(kgeqCO2/m2/an)
Contact AGENCE LE GAC
Contacter gratuitement à l'aide du formulaire ci-dessous.