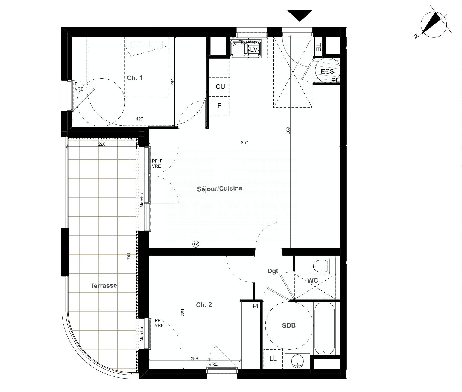
A 5 min de Montpellier, Clapiers offre un cadre de vie de qualité. Sa situation privilégiée au coeur de la Métropole Montpelliéraine, son environnement exceptionnel de plus de 178 hectares composés de collines boisées et de massifs forestiers, son patrimoine historique prestigieux à l'image de son clocher inscrit à l'inventaire des Monuments Historiques qui veille comme une sentinelle sur le village, font de Clapiers l'une des communes résidentielles les plus prisées du nord de Montpellier. L'implantation des bâtiments et l'organisation des logements permettent de justifier des orientations et des vues privilégiées qui induisent des expositions favorables au confort de vie et à l'efficience énergétique du bâtiment permettant ainsi de réduire les besoins en énergies des logements. Appartement T3 lumineux de 67m2, avec une terrasse et un cellier de 18m2. Il est composé d'un séjour avec cuisine ouverte de 30m2, de deux chambres, une salle d'eau et un wc séparé, et un cellier.
Possibilité de personnaliser votre appartement, n'hésitez pas à nous contacter. Label BBC et norme RT 2012 vous garantissent de faibles dépenses énergétiques et thermiques. Eligible au PTZ et à la Loi Pinel pour les investisseurs (zone B1). Frais de notaire réduits à moins de 3%, Informations et disponibilités au 06 98 80 86 74.
PRODEOM IMMOBILIER NEUF, le courtier de l'immobilier neuf sur la région de Montpellier. Gagnez du temps et accédez gratuitement à toute l'offre, avec un vrai spécialiste. Plus de 180 résidences neuves, 2000 logements, 65 promoteurs
67 m²
4 776 €
18 m²
30 m²
3
2
1
1
2 sur 3
05/02/2024
2024
Sud
Ouest
1 (18 m²)
Oui
1
Oui
1
Oui (17 lots)
Consommations énergétiques
Logement économe
40
Logement énergivore (kWhEP/m2/an)
Émissions de gaz à effet de serre
Faible émission de GES
5
Forte émission de GES(kgeqCO2/m2/an)
Contact Prodeom Immobilier
Contacter gratuitement à l'aide du formulaire ci-dessous.