Appartement T3 neuf dans le centre ville de Biganos.
Biganos 33380
0
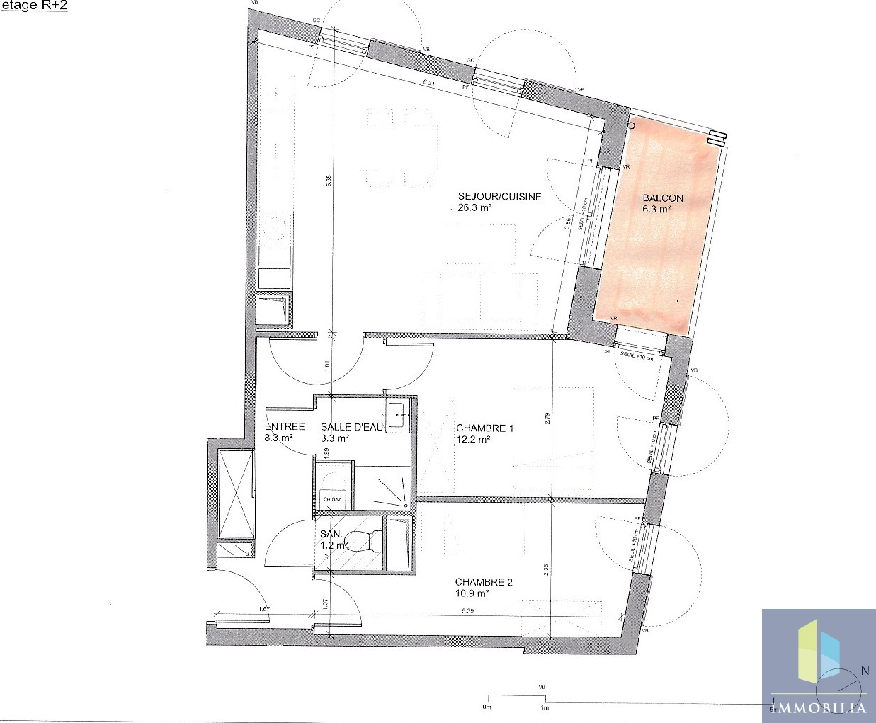
Profitez de la livraison neuve de cet appartement et de ses frais réduits sans à attendre les longs délais de construction ! Au centre ville de Biganos, à 600 mètres de la gare, au sein de la Résidence « Les Cottages », une résidence écoresponsable privilégiant les matérieux biosourcés (logements économes et frais l'été !) qui offre une qualité de vie agréable avec des équipements accessibles à pied et une bonne desserte vers Bordeaux et Arcachon, partie intégrante de la ZAC Nouvelle R, et bénéficiant de la RT 2012 et du label BEE. Au troisième et dernier étage, cet appartement T3 de 62m2 est neuf et prêt à aménager, il offre une entrée avec placard, une agréable pièce de vie lumineuse ouverte sur un balcon de 6m2, deux chambres, une salle d'eau et un wc indépendant. Chauffage au gaz individuel. La résidence est sécurisée et compte 42 logements. Local vélo commun. Montant des charges prévisionnelles à voter lors de la première assemblée générale. Prix promoteur. Honoraires inclus à charge vendeur. Les informations sur les risques auxquels ce bien est exposé sont disponibles sur le site Géorisques : www.georisques.gouv.fr
62 m²
4 355 €
6 m²
26 m²
3
2
1
1
3 sur 2
2025
1 (6 m²)
1
Oui
Consommations énergétiques
Logement économe
52
Logement énergivore (kWhEP/m2/an)
Émissions de gaz à effet de serre
Faible émission de GES
10
Forte émission de GES(kgeqCO2/m2/an)
Contact La Côte Immobilière
Contacter gratuitement à l'aide du formulaire ci-dessous.