APPARTEMENT T3 NEUF MONTLOUIS SUR LOIRE 3 PIÈCES 57,15 M²
Montlouis-sur-Loire 37270
0
Honoraires à la charge du vendeur.
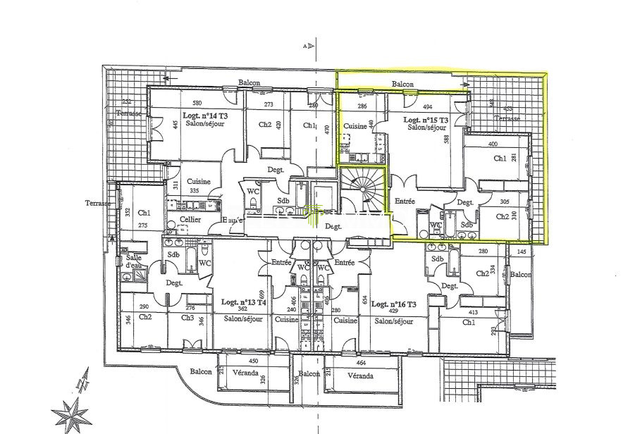
ECOQUARTIER - LES HAUTS DE MONTLOUIS - IDEAL INVESTISSEURS Situé au premier étage avec balcon au sein d'une résidence neuve. Une fois achevé, il vous offrira une entrée avec rangements, une agréable pièce de vie lumineuse avec un accès sur le balcon, deux chambres, une salle d'eau et un WC indépendant. Le balcon de plus de 7m², doté d'un espace de rangement de 3,32 m², porte l'espace extérieur total à plus de 10 m² et est exposé ouest. Vous bénéficierez également de deux places de parking privatives. !!! Toutes les commodités à proximité
Les informations sur les risques auxquels ce bien est éventuellement exposé sont disponibles sur le site Géorisques : www.georisques.gouv.fr Agence BELISIMMO- 9 rue du Maréchal Foch - 37270 -Montlouis Sur Loire - Site internet: www.belisimmo.fr
Honoraires à la charge du vendeur. Dans une copropriété de 34 lots. Aucune procédure n'est en cours. Non soumis au DPE. Les informations sur les risques auxquels ce bien est exposé sont disponibles sur le site Géorisques : georisques.gouv.fr.