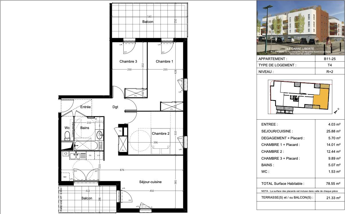
Découvrez cet appartement T3, situé au 5ème étage d'un immeuble récent construit en 2009. Avec une surface habitable de 72 m², cet appartement partiellement meublé vous offre un cadre de vie idéal pour une famille ou un couple souhaitant profiter de tout le confort moderne. L'appartement se compose d'un vaste séjour de 31 m² baigné de lumière naturelle, grâce à ses grandes ouvertures en PVC à double vitrage. La cuisine américaine, aménagée et équipée, est parfaite. Les deux chambres, spacieuses et lumineuses, offrent un espace de repos paisible, tandis que la salle d'eau moderne et le WC indépendant garantissent votre intimité et votre confort. L'exposition sud-ouest de cet appartement vous permet de profiter de belles journées ensoleillées et de couchers de soleil magnifiques depuis votre terrasse de 7 m². Idéale pour les petits-déjeuners matinaux ou les dîners en plein air, cette terrasse est un véritable atout pour votre bien-être quotidien. L'immeuble, dispose d'un ascenseur pour un accès facile à votre appartement et de deux places de stationnement, une intérieure et une extérieure, pour garantir la sécurité de votre véhicule. Le chauffage de ville assure une température agréable tout au long de l'année, tandis que les parties communes, bien entretenues, ajoutent une touche de charme à votre quotidien. Imaginez-vous vivre dans cet appartement où chaque détail a été pensé pour votre confort et votre bien-être. La vue dégagée depuis les fenêtres et la terrasse vous offre une sensation de liberté et de sérénité. Pour compléter ce tableau idyllique, plusieurs commodités sont à proximité. À seulement 5 minutes à pied, vous trouverez une crèche, une alimentation générale, un médecin généraliste, plusieurs restaurants et un arrêt de bus. À 10 minutes à pied, vous aurez accès à deux maternelles et une école élémentaire. Enfin, plusieurs parcs et jardins sont accessibles en 5 minutes en voiture.
Honoraires à la charge du vendeur. Dans une copropriété de 130 lots. Aucune procédure n'est en cours. Classe énergie C, Classe climat C Montant estimé des dépenses annuelles d'énergie pour un usage standard : entre 910.00 et 1300.00 sur les années 2021, 2022 et 2023 (abonnements compris). Les informations sur les risques auxquels ce bien est exposé sont disponibles sur le site Géorisques : georisques.gouv.fr.