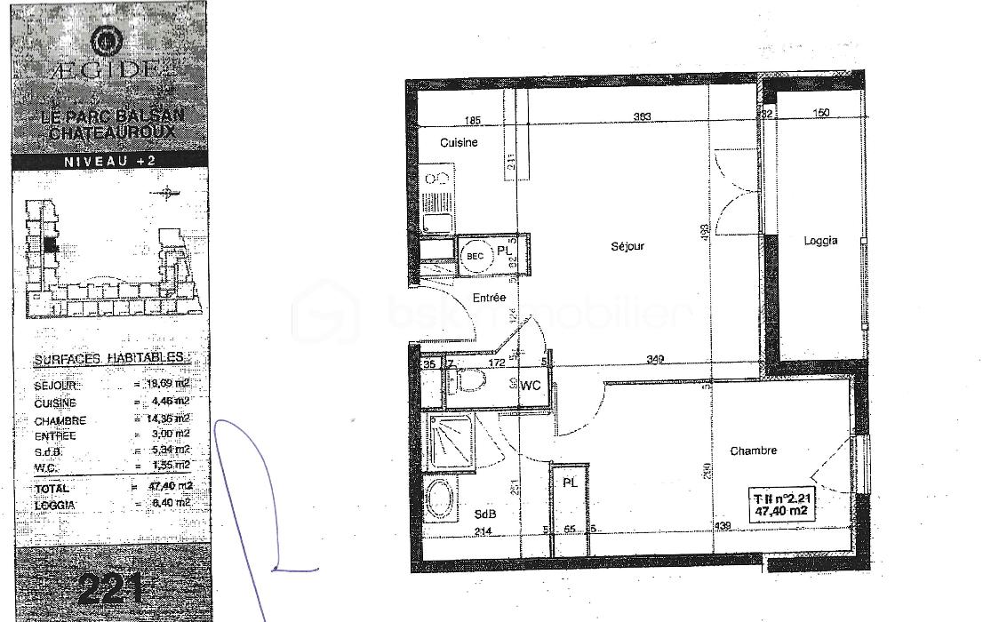
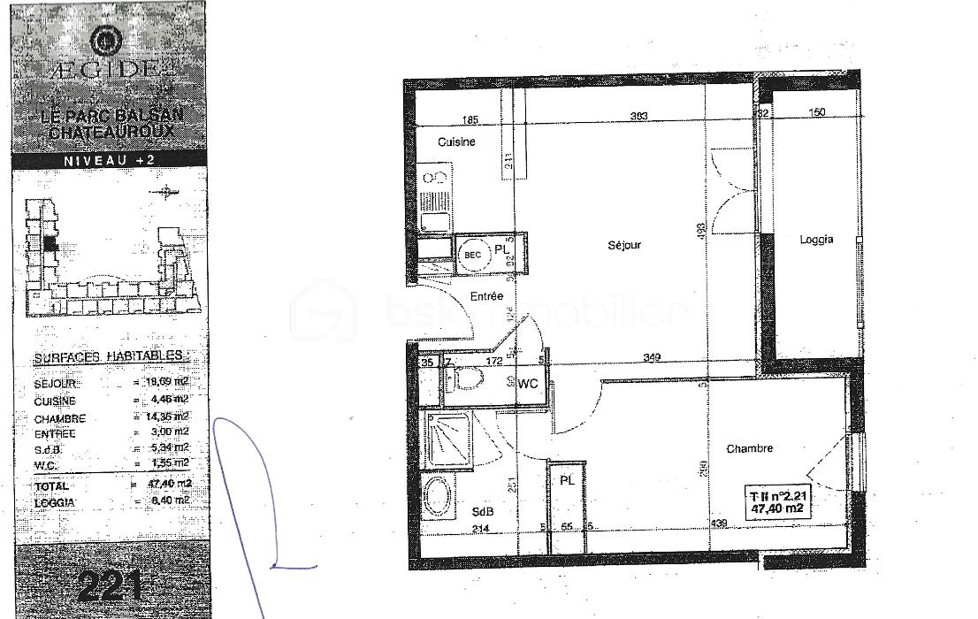
Beau T3 Proche Centre centre-ville. Il se compose de 2 chambres, une cuisine et un salon lumineux. Trés fonctionnel garce à ces nombreuses pancartes. Une salle d'eau et toilettes séparées pour plus de confort. Une grotte agréée ce bien alors n'attendez plus et venez visiter !!
Après un rafraîchissement, venez poser vos valises. Situé dans un quartier dynamique et bien desservi, cet appartement est à seulement 10 minutes à pied des arrêts de bus, des écoles maternelles, élémentaires et du collège, ainsi que de plusieurs médecins généralistes. Pour les amateurs de nature, deux parcs et jardins sont accessibles en 15 minutes à pied, offrant des espaces verts distinctifs pour des promenades relaxantes ou des pique-niques en famille. Un hôpital est également accessible en 10 minutes en voiture, garantissant une sécurité et une tranquillité d'esprit supplémentaires. Chers confrères de l'immobilier, si vous avez des clients, je coopère ! Appelez-moi, Sandra, 0676493112, EI, sandra.pluviaud@lifehome.fr . Agent commercial, RSAC 533 268 231 de Châteauroux. Honoraires charge vendeur, plus d'informations sur notre site lifehome.fr
Honoraires à la charge du vendeur. Dans une copropriété de 45 lots. Quote-part moyenne du budget prévisionnel 1 700 /an. Aucune procédure n'est en cours. Classe énergie D, Classe climat D Montant estimé des dépenses annuelles d'énergie pour un usage standard : entre 1030.00 et 1450.00 sur les années 2021, 2022 et 2023 (abonnements compris). Les informations sur les risques auxquels ce bien est exposé sont disponibles sur le site Géorisques : georisques.gouv.fr.
Votre conseiller lifehome IMMO : Sandra Pluviaud Agent commercial (Entreprise individuelle) RSAC 533 268 231. Chers confrères professionnels de l'immobilier, vous avez des clients ? Contactez-moi, je coopère.
59 m²
1 015 €
3
2
1
1 (séparé)
1
Oui (45 lots)
Consommations énergétiques
Logement économe
183
Logement énergivore (kWhEP/m2/an)
Émissions de gaz à effet de serre
Faible émission de GES
39
Forte émission de GES(kgeqCO2/m2/an)
Contact PLUVIAUD Sandra - Agent Commercial
Contacter gratuitement à l'aide du formulaire ci-dessous.