Honoraires à la charge de l'acquéreur (Prix hors honoraires : 228900 euros).
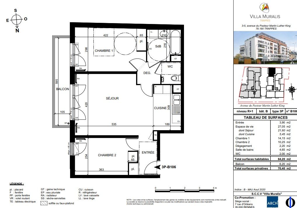
Découvrez votre nouveau nid douillet : Un T3 lumineux et moderne. Imaginez-vous vivre dans un appartement spacieux et moderne, situé au coeur d'un quartier dynamique et bien desservi. Cet appartement T3, construit en 2024, offre une surface habitable de 64,90 m², répartie sur 3 pièces, dont 2 chambres confortables et une salle de bains moderne. Le séjour, d'une superficie de 28 m², est baigné de lumière naturelle grâce à de grandes fenêtres, créant une atmosphère chaleureuse et accueillante. Situé au 2ème étage avec ascenseur, cet appartement bénéficie d'un balcon de 14 m², parfait pour profiter des beaux jours en toute tranquillité. Le standing de cet appartement est évident dès la première visite, avec des finitions soignées et des matériaux de qualité. La cuisine, non équipée, vous offre la liberté de créer votre espace culinaire idéal. Le confort est au rendez-vous avec un chauffage collectif, des WC indépendants et deux places de stationnement intérieures pour garantir la sécurité de votre véhicule. Cet appartement est non meublé, vous laissant ainsi la possibilité de personnaliser chaque pièce selon vos goûts et vos besoins. Venez découvrir ce bijou immobilier et imaginez-vous déjà vivre dans ce cadre idyllique, où chaque détail a été pensé pour votre bien-être. Ne manquez pas cette opportunité unique de faire de cet appartement votre nouveau chez-vous. À proximité, vous trouverez plusieurs commodités pratiques : un bus à 5 min à pied, une école élémentaire à 5 min à pied, une crèche à 15 min à pied, deux maternelles à 10 min à pied, un collège à 15 min à pied, un parc et jardin à 15 min à pied, une alimentation générale à 5 min à pied, trois restaurants à 5 min à pied et trois médecins généralistes à 5 min à pied. De plus, l'appartement est éligible à l'internet haut débit et à la fibre.
Dans une copropriété de 50 lots. Aucune procédure n'est en cours. Classe énergie C, Classe climat C Montant estimé des dépenses annuelles d'énergie pour un usage standard : entre 454.00 et 614.00 sur les années 2021, 2022 et 2023 (abonnements compris). Les informations sur les risques auxquels ce bien est exposé sont disponibles sur le site Géorisques : georisques.gouv.fr.