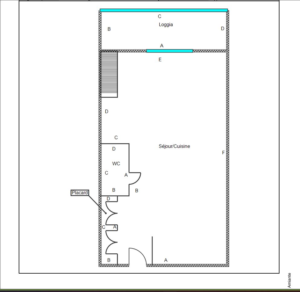
Appartement T3 situé au 4e étage avec ascenseur, en plein centre-ville de Hyères, à deux pas de l'avenue Gambetta et du cinéma Olbia. Il se compose de deux chambres, d'un grand salon lumineux, d'une cuisine indépendante, d'une salle d'eau et de toilettes séparées. Le bien dispose également d'une cave et d'un garage, un véritable atout dans ce quartier recherché où toutes les commodités sont accessibles à pied. L'appartement bénéficie d'un emplacement idéal, proche des commerces, transports et écoles, tout en offrant un cadre de vie agréable et pratique. Il conviendra aussi bien à une résidence principale qu'à un investissement locatif. Pour plus d'informations ou organiser une visite, merci de nous contacter. La Copropriété : 40 Lots - pas de procédure
80 m²
3 594 €
3
2
1
1
4 sur 5
100 € / mois
1970
Sud
Oui
Oui
1
Oui (50 lots)
Consommations énergétiques
Logement économe
123
Logement énergivore (kWhEP/m2/an)
Émissions de gaz à effet de serre
Faible émission de GES
3
Forte émission de GES(kgeqCO2/m2/an)
Contact DJAVACHIVILI
Contacter gratuitement à l'aide du formulaire ci-dessous.