Honoraires à la charge de l'acquéreur (Prix hors honoraires : 398400 euros).
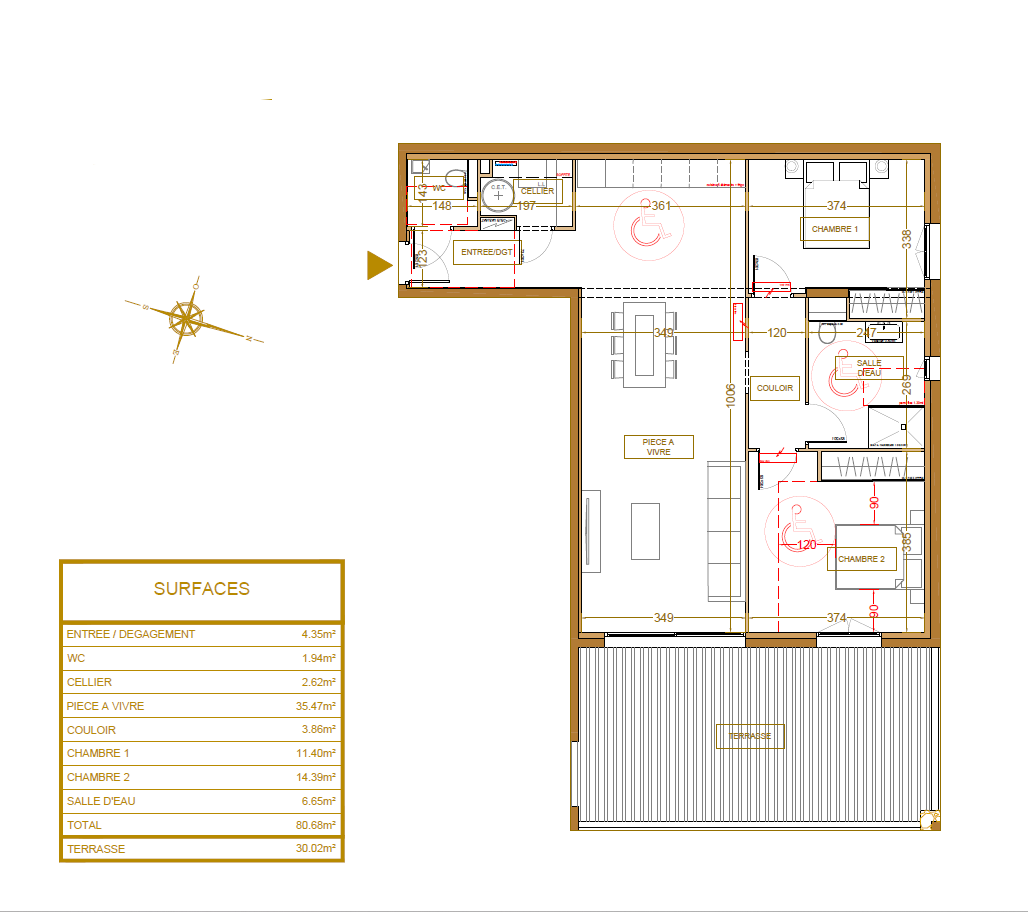
Nouveauté à découvrir en plein coeur de Solenzara ! Dans une résidence de prestige offrant un cadre de vie exceptionnel, découvrez ce magnifique appartement de type 3, situé au RDC et profitant d'une vue imprenable sur la mer. Avec une proximité immédiate des commerces et des plages, cet appartement bénéficie d'un emplacement idéal, dans une résidence de standing alliant confort et élégance. D'une superficie généreuse de 79.46 m2, ce bien se compose d'une pièce de vie lumineuse ouvrant sur une terrasse de 26.01 m2 avec vue mer, deux chambres, ainsi que d'une salle d'eau avec WC. La résidence de standing assure un environnement paisible et raffiné. Une opportunité rare pour un appartement élégant, idéal comme résidence principale, pied-à-terre ou investissement de qualité.
79.46 m²
5 223 €
3
2
1
1
4.17 %
Est
Oui
1
1
Oui
Oui
Oui
Contact Corse Patrimoine Immobilier
Contacter gratuitement à l'aide du formulaire ci-dessous.