Vue imprenable sur Lyon Appartement 4 pièces, vendu tout équipé La Mulatière
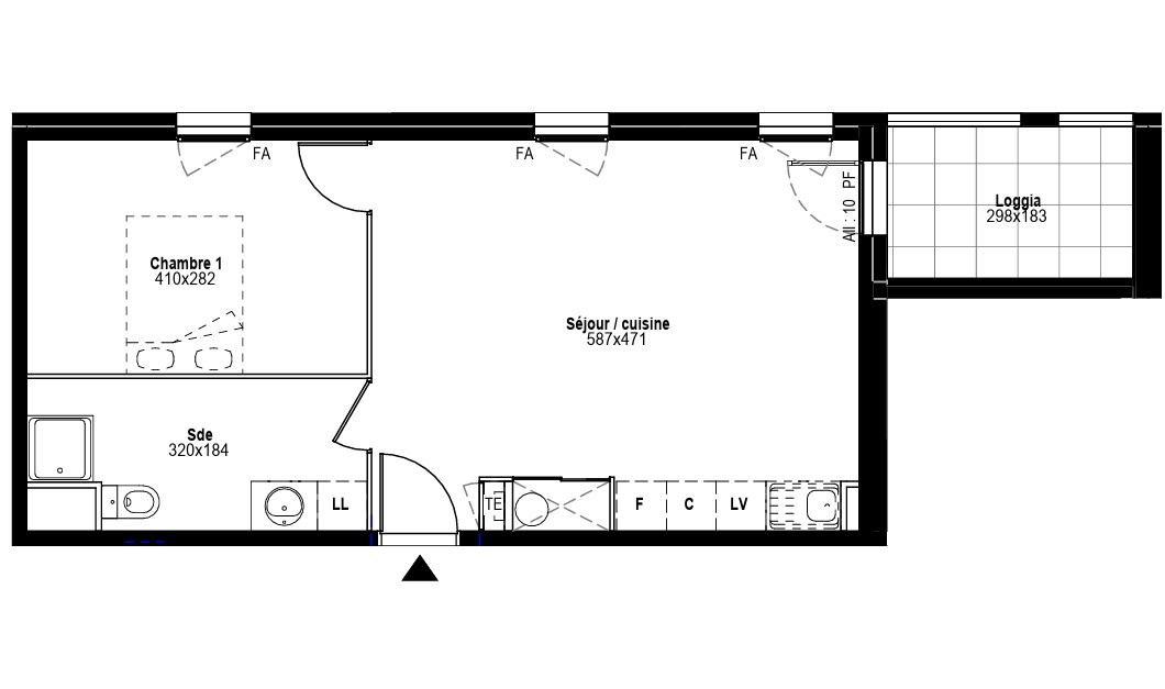
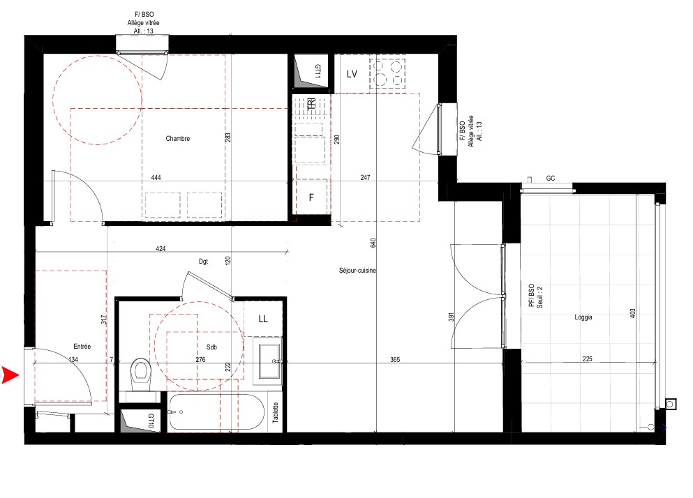
Sur les hauteurs de La Mulatière, découvrez ce superbe appartement de 72,36 m² Carrez, refait récemment avec des matériaux de qualité et vendu tout équipé.
L'entrée offre de nombreux rangements sur mesure, puis s'ouvre sur un espace de vie avec une vue panoramique à couper le souffle sur Lyon. La cuisine ouverte, moderne et entièrement équipée, s'intègre harmonieusement à un séjour chaleureux, sublimé par une grande table en bois massif. Côté nuit, deux chambres spacieuses et lumineuses avec placards intégrés, ainsi qu'une troisième pièce d'environ 7 m², parfaite pour une chambre d'enfant, un bureau ou une chambre d'appoint.
Une salle d'eau contemporaine et un WC séparé complètent le tout. Côté pratique : Cave privative, Résidence sécurisée avec de nombreux stationnements libres, Commerces, écoles et transports à proximité, À quelques minutes de Perrache, Confluence, l'Aquarium et du centre-ville de Lyon. Un bien rare, prêt à vivre qui n'attend plus que vous.
Contactez Émilie GROSSET au 06 48 86 96 42 pour organiser votre visite.
Honoraires à la charge du vendeur. Dans une copropriété de 145 lots. Quote-part moyenne du budget prévisionnel 2 124 /an. Aucune procédure n'est en cours. Classe énergie C, Classe climat C. Montant moyen estimé des dépenses annuelles d'énergie pour un usage standard, établi à partir des prix de l'énergie de l'année 2022 : 690.00 . Date de réalisation du DPE : 07-10-2011. Les informations sur les risques auxquels ce bien est exposé sont disponibles sur le site Géorisques : georisques.gouv.fr.