Au sein de la métropole Bordelaise et située rive droite dans la commune de Floirac, cette résidence bénéficie de tous les services de proximité, du coeur ville et du très prochain pont Simone Weil avec les transports en commun et tous les accès qui vous permettrons de reliés tous les points stratégiques.
Dans un environnement de verdure, les appartements sont desservis par des coursives au milieu d'ilots arborés.
Les appartements ont été conçus afin de vous apporter une qualité de vie avec des terrasses, de larges ouvertures pour laisser entrer un maximum de lumière et vous laisser apprécier l'environnement.
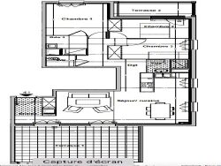
Cet appartement de type T4 d'une surface habitable de 86.57m2 avec deux terrasses pour une surface globale de plus de 34m2 se compose d'une entrée avec son placard qui dessert un séjour/cuisine de 33.44m2 avec un accès direct sur sa terrasse de 27.23m2. Côté nuit trois chambres dont une suite parentale avec sa salle d'eau, deux autres chambres avec chacune son placard, une seconde salle d'eau et un wc indépendant.
Une place de parking complète ce bien.
- Prix TVA 5,5% : 357 645  - Prix TVA 20% : 406 800 - Frais de Notaires Réduits - Garanties - RT 2012 - Exonération de Taxe Foncière
VOTRE APPARTEMENT POUR VOTRE NOUVEAU LIEU DE VIE
Honoraires à la charge du vendeur. Dans une copropriété de 56 lots. Aucune procédure n'est en cours. DPE en cours. Les informations sur les risques auxquels ce bien est exposé sont disponibles sur le site Géorisques : georisques.gouv.fr.
Votre conseiller RH Patrimoine : Gérant associé - Philippe HERVE Carte T CPI 3301 2018 000 029 220
86.57 m²
4 131 €
33 m²
4
3
2
1 (séparé)
4 sur 5
2024
7
Oui
1
27
Oui (56 lots)
Contact Philippe HERVE
Contacter gratuitement à l'aide du formulaire ci-dessous.