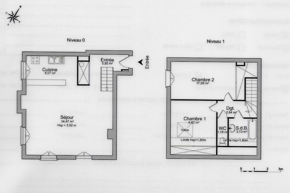
Au coeur de Bordeaux, dans un quartier calme et recherché, venez découvrir ce bel appartement T4 de 81 m2 offre un cadre de vie lumineux et apaisant, avec une vue dégagée sans aucun vis-à-vis.
Dès l'entrée, vous serez séduit par sa généreuse pièce de vie de 33m2, baignée de lumière naturelle grâce à de larges baies vitrées. Cet espace de vie convivial s'ouvre sur une agréable terrasse de 14m2, idéale pour profiter des beaux jours en toute tranquillité.
Côté nuit, l'appartement dispose de trois chambres confortables, réparties de manière à préserver l'intimité de chacun. Une salle de bain et des WC indépendants viennent compléter l'ensemble, pour un confort optimal au quotidien.
Parfaitement pensé pour une vie de famille, ce bien combine fonctionnalité, clarté et calme, tout en restant à proximité immédiate des commerces, écoles et transports.
Deux places de parking couvertes et sécurisées complètent ce bien en SUS.
Honoraires à la charge du vendeur. Dans une copropriété de 205 lots. Aucune procédure n'est en cours. Non soumis au DPE. Les informations sur les risques auxquels ce bien est exposé sont disponibles sur le site Géorisques : georisques.gouv.fr.