Appartement T4 ? 85 m² avec terrasse de 24 m² et parking en sous-sol
Montpellier 34070
0
Situé dans le quartier dynamique de Prés d'Arènes, cet appartement T4 de 85 m² prend place au sein d'une résidence neuve de standing signée Helenis.
L'appartement séduit par ses volumes généreux, un environnement lumineux et un agencement fonctionnel.
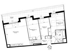
Le séjour cuisine s'ouvre sur une terrasse traversante de 24 m² orienté ouest, avec trois chambre ou la possibilité d'en faire un bureau, une salle de bain et WC séparés.
Construit avec des prestations de qualité, l'immeuble offre un cadre de vie moderne et sécurisé. Vous disposerez en effet d'une des parties communes soignées, d'une place de stationnement privative en sous-sol, accessible par ascenseur ainsi que d'un local poubelle.
A quelques mètres du tramway et des commerces, ce bien rare allie qualité de vie et qualité de construction
Cette annonce référence 304660 vous est présentée par votre agent commercial BSK Immobilier CHARLES GLOCKNER (EI) immatriculé au RSAC de MONTPELLIER (34000) sous le numéro 93404785300015.
Prix du bien : 325 000,00 €
Les honoraires d'agence sont à la charge du vendeur.
A propos de la copropriété :
Pas de procédure en cours.
Nombre de lots : 159
Charges prévisionnelles annuelles : 1 800,00 €
A propos des performances énergétiques :
Date de réalisation du diagnostic énergétique : 06/12/2024
Score DPE : 39 kWhEP/m²/an
Score GES : 1 kgepCO2/m²/an
Montant estimé des dépenses annuelles d'énergie pour un usage standard : entre 397.00 € et 538.00 € par an. Prix moyens des énergies indexés sur l'année 2022 (abonnements compris).
Les informations sur les risques auxquels ce bien est exposé sont disponibles sur le site Géorisques : www.georisques.gouv.fr
85 m²
3 824 €
4
3
1
2 sur 4
2024
Consommations énergétiques
Logement économe
39
Logement énergivore (kWhEP/m2/an)
Émissions de gaz à effet de serre
Faible émission de GES
1
Forte émission de GES(kgeqCO2/m2/an)
Contact CHARLES GLOCKNER
Contacter gratuitement à l'aide du formulaire ci-dessous.