Appartement T4 avec grande terrasse et deux parkings
Bordeaux 33000
0
Honoraires à la charge du vendeur.
DE LA VERDURE EN COEUR DE VILLE
Au coeur d'une résidence résolument moderne, offrant a ses habitants de grands espaces verts et un accès facile a tous les commerces et services environnants, découvrez ce bel appartement vous offrant confort et luminosité.
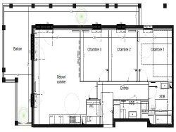
L'appartement vous propose une entrée donnant accès à un magnifique séjour cuisine de 33m2 baigné de lumière par ses multiples ouvertures et sa doible exposition. Une terrasse de 32m2 s'articule autour de l'appartement et offre à chaque pièce un accès direct sur l'extérieur. Le côté nuit se compose de trois chambres spacieuses, d'une salle de bains avec WC, d'une salle d'eau et d'un WC indépendant.
Une place de parking en SUS complète l'appartement.
Honoraires à la charge du vendeur. Dans une copropriété de 200 lots. Aucune procédure n'est en cours. DPE en cours. Les informations sur les risques auxquels ce bien est exposé sont disponibles sur le site Géorisques : georisques.gouv.fr.