À vendre, appartement T4 idéalement situé à Lormont, dans un environnement calme et verdoyant, au sein d'un parc arboré. Ce secteur résidentiel est très prisé pour sa proximité avec toutes les commodités : commerces, écoles, et transports en commun, permettant un accès rapide à Bordeaux grâce au tramway et aux grands axes routiers. Le quartier offre un cadre de vie agréable, parfait pour allier tranquillité et dynamisme urbain.
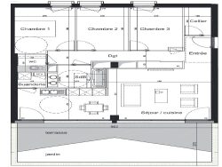
Cet appartement en excellent état, aux normes RE2020 pour des performances énergétiques optimales, se distingue par ses belles prestations. Dès l'entrée, vous découvrirez un placard, une pièce de vie spacieuse et lumineuse, idéale pour vos moments de détente ou pour recevoir, prolongée par une grande terrasse où vous pourrez profiter du cadre verdoyant. Côté nuit, trois belles chambres, une salle d'eau, un espace buanderie qui offre confort et rangement et un wc indépendant.
Une place de parking sécurisée en sous-sol complète ce bien, garantissant confort et sécurité pour votre véhicule.
Ce T4 est une opportunité rare, idéale pour un premier achat ou un investissement locatif, dans un quartier où la qualité de vie et la praticité se rejoignent.
POUR VIVRE OU LOUER, UN INVESTISSEMENT GAGNANT !
Honoraires à la charge du vendeur. Dans une copropriété de 132 lots. Aucune procédure n'est en cours. DPE en cours. Les informations sur les risques auxquels ce bien est exposé sont disponibles sur le site Géorisques : georisques.gouv.fr. Ce bien vous est proposé par un agent commercial (Entreprise individuelle).