Appartement T4 de 100m² - Etat d'achèvement - garage -place de parking - vue
Goncelin 38570
0
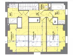
? Situé dans la commune de GONCELIN à portée de toutes les commodités (commerces, école, gare, etc...), bénéficiant d'une vue dégagée, lumineux appartement T4 de 100m² sur 3 niveaux en état d'achèvement, offrant un beau potentiel d'aménagement. ? L'appartement se compose : ? Pièce de vie/cuisine de 42m² ? Deux chambres entre 11 et 12m² ? Une suite parentale de 18m² ? 2 Toilettes séparés ? 1 garage de 41m² ? Ce qu'il faut savoir sur ce bien : ? Petite copropriété de 2 lots ? 1 place de parking prévue dans la cour de la copropriété ? Projet final validé par la mairie ? Travaux d'achèvement à prévoir: - aménagements intérieurs - aménagements extérieurs - Pompe à chaleur - VMC - crépi et bardage de la façade - branchement au réseau VRD ?? Possibilité d'acheter les deux lots de cette copropriété pour 280 000? ?? Et il est à découvrir dans notre agence ? ?? Prix 155 000 Euros honoraires charge vendeur ~~~~~~~~~~~~~~~~~~~~~~~~~~~~ ???'?????? ???????? ???? ??? ??????? ?? ?? ????? ??????? ? ?? ????tôt? ? « ?????? ??????????? ?.? » L?équipe du Touvet : Julie, Sandra, Claire et Léo. ?Cimm Immobilier Place de L'église 38660 Le TOUVET ? 04 76 08 99 45 ?le-touvet@cimm.com ?www.le-touvet.cimm.com ~~~~~~~~~~~~~~~~~~~~~~~~~~~~ ???? SAS JCM - 55 av. Jean Kuntzmann - Inovallée 38330 MONTBONNOT Capital 10 000 ? - RCS GRENOBLE Carte Pro Transactions CPI délivrée par la CCI de Grenoble. Honoraires à la charge du vendeur - Claire JOURDAN - Agent commercial - EI - RSAC Grenoble 933154858 - RCS 40834475202291 - Caisse de garantie QBE L'immobilier vous intéresse, contactez-moi
101.7 m²
1 524 €
4
3
Oui
Oui
Oui
Contact SAS REVO IMMO
Contacter gratuitement à l'aide du formulaire ci-dessous.