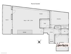
Liberkeys vous propose en exclusivité à Auray gare, cet appartement T4 en duplex de 96 m² situé au 2ème et dernier étage sans ascenseur d'une petite résidence calme et bien entretenue. Ce bien entièrement rénové vous séduira par son agencement optimisé et ses volumes généreux.
À l'étage principal, vous accédez à l'appartement par une entrée avec placard. La pièce de vie très lumineuse, constituée d'un salon-séjour de 33 m² ouvert sur une cuisine neuve aménagée et équipée, donne sur un agréable balcon couvert.
L'espace nuit est bien pensé et isolé de la pièce de vie pour préserver calme et tranquillité. Deux chambres dont une avec placard sont attenantes à leur salle de bain. Les toilettes sont séparées.
À l'étage supérieur, vous découvrez une suite parentale spacieuse avec son dressing, sa propre salle d'eau et ses toilettes.
Vous bénéficiez d'un garage privatif de 21 m² accessible directement depuis l'extérieur.
Montant estimé des dépenses annuelles d'énergie pour un usage standard : entre 949 € et 1283 € par an. Prix moyens des énergies indexés sur l'année 2021 (abonnements compris).
Ce bien vous plaît ? Visitez-le virtuellement en 3D sur le site de Liberkeys ou contactez directement votre conseiller. Desgrippes Vincent, agent commercial immatriculé au RSAC de Vannes sous le numéro 808 985 915. Référence annonce : DOM20581. Date de réalisation du diagnostic : 29/04/2022. Les honoraires sont à la charge du vendeur.
96 m²
3 083 €
33 m²
4
3
1
1
2
2 sur 2
2007
Sud
Ouest
Oui
Consommations énergétiques
Logement économe
178
Logement énergivore (kWhEP/m2/an)
Émissions de gaz à effet de serre
Faible émission de GES
5
Forte émission de GES(kgeqCO2/m2/an)
Contact Vincent Desgrippes
Contacter gratuitement à l'aide du formulaire ci-dessous.