Appartement T4 de prestige 88m² avec extérieur emplacement id?
Paris 75016
0
Honoraires à la charge du vendeur.
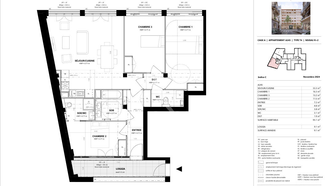
Appartement T4 de prestige de 88m² au 4ème étage sur 6. Dans une résidence d'appartements d'exception à Paris 16ème
Prix : 1 325 000 - TVA 20% Disponible T4 2028
L'appartement :
-Agencement idéale -un séjour cuisine de 34m2 -3 chambres avec placards (12,8m2,12,7m2 et 10,5m2) -Salle de bain -Salle d'eau -Loggia de 5,3m2
Un nouvel art de vivre privilégiant l'ouverture des espaces, les vues sur la ville et la tour eiffel Découvrez une réalisation aussi rare qu'exceptionnel, dans le tant convoité 16è arrondissement de Paris. cette résidence propose des logements d'exception avec vues sur les toits parisiens et la Tour Eiffel.
Prestations très haut de Gamme : -Parquet massif (lame de 90cm) dans les pièces sèches -Grès cérame rectifié 60 x 60 et faïence (30 x 60) sur tous les murs dans les SDB et SDE Meuble vasque, pare-douche / bain et sèche-serviette dans les SDB et SDE - WC suspendus et lave-main - Menuiseries extérieures bois / aluminium - Porte palière à âme pleine de 2,14m équipée d'une serrure 5 points latéraux classement A2P * - Portes intérieures à âme pleine de 2,14m - Chape acoustique et double vitrage thermique
Accès : - Proximité de toutes les commodités - Emplacement d'exception
Nous contacter pour tous éléments complémentaires : détails, plans, prestations et autres. Les Honoraires réduits sont à la charge du vendeur et inclus dans le prix de vente. EUPORIA IMMOBILIER - présent sur PARIS & LYON - Carte professionnelle CPI 6901 2021 000 000 166 CCI LYON Métropole SAINT ETIENNE ROANNE. RCS LYON 903 566 099.
Honoraires à la charge du vendeur. Dans une copropriété de 26 lots. Quote-part moyenne du budget prévisionnel 1 /an. Aucune procédure n'est en cours. Non soumis au DPE. Les informations sur les risques auxquels ce bien est exposé sont disponibles sur le site Géorisques : georisques.gouv.fr.
88 m²
15 057 €
34 m²
4
3
1
1
2
3 sur 6
Oui
Oui
Oui
1
Oui
Oui (26 lots)
Contact EUPORIA
Contacter gratuitement à l'aide du formulaire ci-dessous.