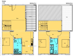
Appartement T4 Duplex Superficie 92.46 m2 avec 11.47 m2 de
Cayenne 97300
0
Honoraires à la charge du vendeur.
Situé dans une résidence récente 2019, sécurisée avec parking et piscine . Nous vous proposons un T4 Duplex à la vente avec terrasse 11.49 m2 d'une superficie habitable de 92 m2 sur Baduel à Cayenne situé au 3èmé et dernier étage avec ascenseur . Cet appartement comprends une cuisine ouverte sur séjour, une chambre avec une très belle terrasse et à l'étage vous avez les deux autres chambres qui font 11.50m2 en moyenne. Il y a deux salles d'eau avec wc et lavabo qui complètent le tout. La résidence se situe sur la route de Baduel à proximité des commerces, des administrations et du Campus Universitaire. Ce produit immobilier est idéal pour de la résidence principale. Un parking est vendu avec le logement. Charges annuelles : 1700 euros Nombre de lot : 52 lots Copropriété : Oui Procédure diligentés Syndic : non Honoraire à la charge du vendeur. Référence mandat 2217. Contactez votre conseiller Km immobilier pour effectuer une visite au 0694 438822. SAS KM IMMO Votre partenaire immobilier 0694 438822
92 m²
2 174 €
4
3
2
2
3
2017
1
Contact KM Immobilier agence Montabo
Contacter gratuitement à l'aide du formulaire ci-dessous.