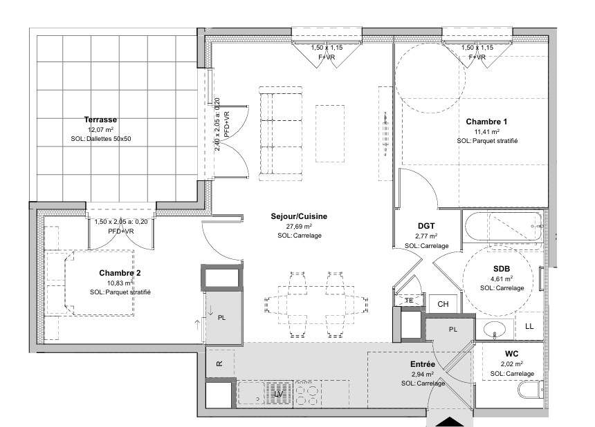
Situé Boulevard de l'Europe à Pierre-Bénite Dans une résidence récente (2018), sécurisée et de bon standing, découvrez ce T4 en rez-de-jardin offrant des volumes confortables et un extérieur rare. L'appartement s'ouvre sur une entrée avec placard donnant accès à une grande pièce de vie lumineuse comprenant une cuisine ouverte équipée avec îlot central, un espace repas et un salon. La partie nuit se compose de trois chambres avec rangements, d'une salle de bain avec baignoire et espace buanderie, d'une salle d'eau avec douche, ainsi que de WC séparés.
Vous profiterez d'un jardin privatif plat et entièrement clos d'environ 158 m², complété par une terrasse, idéal pour un usage quotidien comme pour les beaux jours. Le bien dispose de deux garages, dont un spécialement aménagé pour les personnes à mobilité réduite (PMR).
Le bien est situé dans un environnement calme, au sein d'une copropriété familiale, avec les commerces accessibles à pied. Les transports en commun se trouvent à proximité immédiate et permettent de rejoindre rapidement le métro et les axes principaux.
Bien situé en copropriété : 50 Honoraires charge vendeur. DPE : C
Pour plus d'informations ou pour organiser une visite, contactez Sébastien VERNIERE 000. 64 85 51 202 s.verniere@pietrapolis.fr EI agent commercial RSAC 914 067 608 Estimation GRATUITE !
Agence immobilière enregistrée RCP de Lyon sous le N 424 902 2- N° Carte professionnelle N° 6901 2016 000 003 981. Les informations sur les risques auxquels ce bien est exposé sont disponibles sur le site Géorisques. www.georisques.gouv.fr
Honoraires à la charge du vendeur. Dans une copropriété de 50 lots. Aucune procédure n'est en cours. Classe énergie C, Classe climat C Montant estimé des dépenses annuelles d'énergie pour un usage standard : entre 770.00 et 1100.00 sur les années 2021, 2022 et 2023 (abonnements compris). Les informations sur les risques auxquels ce bien est exposé sont disponibles sur le site Géorisques : georisques.gouv.fr.