Appartement t4 Secteur Etang Abricot Superficie 91.27 m2
Fort-de-France 97200
0
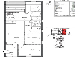
Votre agence Km immobilier à le plaisir de vous proposer à Etang Abricot à l'entrée de Fort De France. Cette résidence récente de 2019 est placé dans un espace paysagé et arboré., ascenseur sur R+3 au niveau des étages. Cette résidence possède un appartement T4 récent vide et disponible immédiatement. Ce bien immobilier d'une superficie habitable de 91.27 m2 avec 11 m2 de terrasse comprend un grand séjour, une cuisine aménagée, trois chambres avec un placard, une salle d'eau, un wc indépendant. Idéal pour de l'investissement locatif ou résidence principale. Cet appartement est situé à proximité des commerces, des services et des restaurants et de la Marina. Deux places de parkings sont vendus avec le logement. Charges annuelles : 1500 euros Nombre de lot : 64 lots Copropriété : Oui Procédure diligentés Syndic : non Ref Mandat 2168. Honoraire charge vendeur. Contactez votre conseiller Km immo pour visiter au 0694 357860 SAS KM IMMO Votre partenaire immobilier 0694 438822
91.27 m²
2 520 €
4
3
1
1
2
1
Oui (64 lots)
Contact CROSNIER Michael
Contacter gratuitement à l'aide du formulaire ci-dessous.