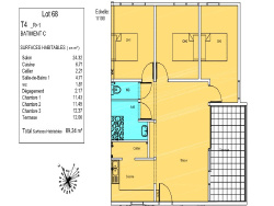
Appartement T4 Superficie 77 m2 avec 12.06 m2 de Terrasse R
Cayenne 97300
0
Honoraires à la charge du vendeur.
Situé dans une résidence récente 2019, sécurisée avec parking et piscine . Nous vous proposons un T4 à la vente avec terrasse 12.06 m2 d'une superficie habitable de 77 m2 sur Baduel à Cayenne situé au premier étage avec ascenseur . Cet appartement comprends une cuisine ouverte sur séjour, 3 chambres qui font 12 m2 en moyenne. Il y a une salle d'eau avec wc et lavabo qui complètent le tout. La résidence se situe sur la route de Baduel à proximité des commerces, des administrations et du Campus Universitaire. Ce produit immobilier est idéal pour de la résidence principale. Un parking est vendu avec le logement. Charges annuelles : 1700 euros Nombre de lot : 52 lots Copropriété : Oui Procédure diligentés Syndic : non Honoraire à la charge du vendeur. Référence mandat 2217. Contactez votre conseiller Km immobilier pour effectuer une visite au 0694 438822. SAS KM IMMO Votre partenaire immobilier 0694 438822
77.18 m²
2 423 €
4
3
2
2
1 sur 4
2017
Oui
1
1
Contact KM Immobilier agence Montabo
Contacter gratuitement à l'aide du formulaire ci-dessous.