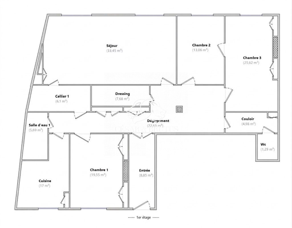
L'EMPLACEMENT & LA RÉSIDENCE Idéalement situé à Caluire, au sein d'une belle copropriété de standing, parfaitement entretenue et arborée. Vous profiterez d'un cadre de vie calme et verdoyant, tout en étant à proximité immédiate des commodités. L'ESPACE DE VIE Découvrez ce vaste appartement familial de type T5, situé au 3ème étage de la copropriété, conçu pour le confort quotidien. Baignée de lumière grâce à une triple exposition, la pièce de vie confortable s'ouvre sur un premier extérieur de plus de 15 m², offrant une vue dégagée sans vis-à-vis. L'ESPACE NUIT Le plan est parfaitement optimisé pour une famille avec deux espaces bien distincts : Un coin enfants disposant de 3 chambres et d'une salle de bain dédiée. Un coin parents séparé, avec sa propre chambre et une seconde salle d'eau.L'appartement comprend 2 WC pour plus de confort. LES ANNEXESPour compléter ce bien rare : Un garage double fermé en sous-sol en sus du prix Deux caves saines pour le stockage. LES ATOUTS Résidence très bien équipée. Lumineux et calme. Agencement idéal (séparation parents/enfants).
Dossier complet, plans et visuels de projection disponibles sur demande. Ne laissez pas passer ce bien où le charme et les atouts ne sont plus à démontrer. Une visite s'impose pour confirmer le coup de coeur.
Pour plus d'informations, je me tiens à votre disposition. Dossier complet sur demande.
Honoraires à la charge du vendeur. Dans une copropriété de 109 lots. Quote-part moyenne du budget prévisionnel 2 900 /an. Aucune procédure n'est en cours. Classe énergie C, Classe climat A Montant estimé des dépenses annuelles d'énergie pour un usage standard : entre 1870.00 et 2500.00 sur les années 2021, 2022 et 2023 (abonnements compris). Les informations sur les risques auxquels ce bien est exposé sont disponibles sur le site Géorisques : georisques.gouv.fr.