Appartement T5 de 130 m2 Rue de Courcelles à Paris
Paris 75017
0
Honoraires à la charge de l'acquéreur (Prix hors honoraires : 1550000 euros).
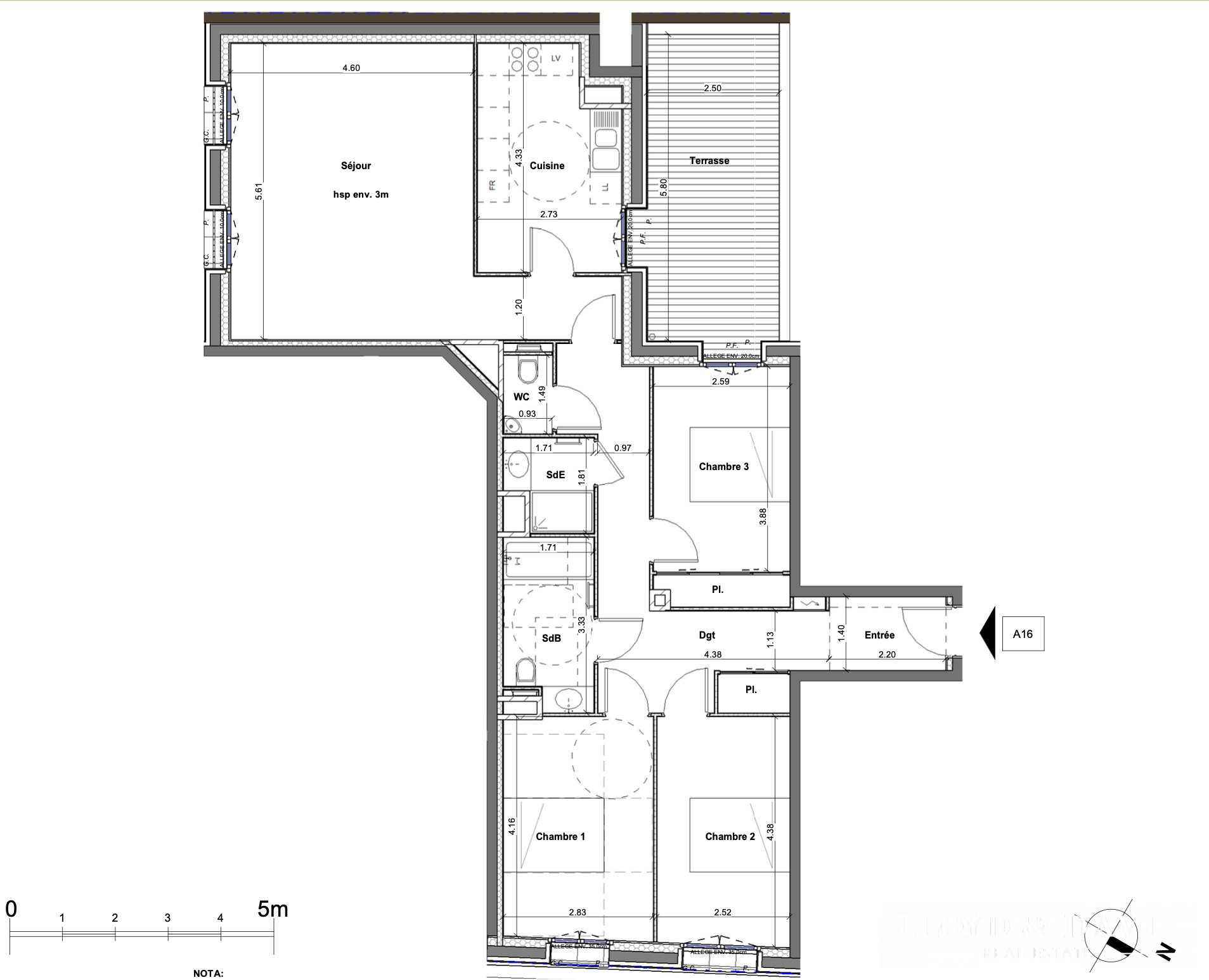
PARIS 17ème, rue de Courcelles, dans le quartier très recherché de Plaine Monceau reconnu pour son élégance, sa qualité de vie et sa proximité immédiate du Parc Monceau. Découvrez cet appartement de très bon standing situé au 2ème étage avec ascenseur, un niveau particulièrement apprécié pour sa luminosité et son confort au quotidien. ***Description: - Spacieux hall d'entrée de 13.3 m2 laissant apparaître le charme de l'ancien - Pièce de réception de plus de 40 m2 avec un espace salon et salle à manger: belle hauteur sous plafond, beaux parquets et moulures d'origine favorisant une atmosphère chaleureuse - Cuisine indépendante de 9 m2, moderne et équipée, précédée de son office - Salle de bain de 4,32 m2 - Beau dégagement menant à l'espace nuit - Trois chambres spacieuses de 12.49 m2, 18.41 m2 et 14.29 m2 (actuel bureau). L'une possède un cabinet de toilette attenant. La plus grande est accompagnée d'un dressing de 2.32 m2. - Salle d'eau de 2.3 m2 - Balcons apportant luminosité et ouverture sur l'extérieur - Cave en sous-sol ***Aspects techniques: chauffage individuel au gaz avec chaudière de 2019, copropriété bien entretenue. Charges de 530 /trimestre ***En résumé: Cet appartement réunit tous les critères recherchés dans le 17ème arrondissement: beaux volumes, cachet haussmannien, plan équilibré et emplacement premium avec la station de métro (ligne 3) à proximité. Un bien idéal pour une résidence principale familiale ou un investissement patrimonial de qualité. ***Le +: une place de stationnement dans un parking sécurisé à proximité peut être vendue en sus. ***A NOTER: les visites sont à réserver pour la période du 03/02 au 07/02 inclus. Géorisques : www.georisques.gouv.fr » (C. envir., art. R. 125-25, I). Performance énergétique:E.Performance climatique:E. Montant bas des dépenses énergétiques: 3190 Montant haut des dépenses énergétiques:4370 Bien soumis au statut de la copropriété. Pas de procédure en cours. Montant moyen trimestriel de la quote-part de charges: 530 . Les honoraires inclus sont à la charge de l'acquéreur. Votre consultant immobilier WE INVEST - RIOM : Hélène TARDIF 06 62 42 O2 69, helene.tardif@weinvest.fr RSAC de CLERMONT FERRAND sous le numéro 978 686 467
Honoraires inclus de 4.13% TTC à la charge de l'acquéreur. Prix hors honoraires 1 550 000 . Dans une copropriété de 2 lots. Aucune procédure n'est en cours. Classe énergie E, Classe climat E Montant estimé des dépenses annuelles d'énergie pour un usage standard : entre 3214.00 et 4349.00 sur les années 2021, 2022 et 2023 (abonnements compris). Les informations sur les risques auxquels ce bien est exposé sont disponibles sur le site Géorisques : georisques.gouv.fr.
131.55 m²
12 269 €
5 m²
35 m²
5
3
1
1
1 (séparé)
2 sur 8
4.13 %
09/02/2026
180.00 € / mois
1912
1 (5 m²)
Oui
Oui
1
Oui (2 lots)
Consommations énergétiques
Logement économe
279
Logement énergivore (kWhEP/m2/an)
Émissions de gaz à effet de serre
Faible émission de GES
57
Forte émission de GES(kgeqCO2/m2/an)
Contact Hélène Tardif
Contacter gratuitement à l'aide du formulaire ci-dessous.