Appartement T5 en toit terrasse 120m2 et terrasses de 85m2 M
Montpellier 34070
0
Honoraires à la charge du vendeur.
APPARTEMENT PRESTIGE, TOIT TERRASSE ET SPA ! Dernière disponibilité ! SIGNATUR Immobilier vous présente dans cette prestigieuse résidence végétalisée (RE2020), un appartement T5 standing haut de gamme et tout confort de 121m2 avec 3 belles terrasses végétalisées de 11m2, 12m2 et 62m2 avec un emplacement Jacuzzi et une pergolas.
Situé sur la commune de Montpellier, dans un quartier calme où il fait bon vivre, proche de toutes commodités, des commerces (supermarchés, restaurants, bars, médical, écoles, crèches, gare...), quartier Millénaire, à côté de Port Marianne. Le quartier est bordé par le Lez, à proximité d'un espace vert de 5 000 m2, et la création de nouvelles pistes cyclables renforcent l'attractivité du quartier. Un lieu idéal pour ceux qui recherchent un cadre de vie alliant modernité, confort et bien-être.
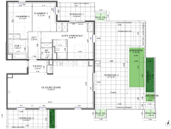
L'appartement se compose d'une grande entrée, d'une superbe pièce à vivre baignée de lumière et climatisée de 54m2, donnant sur 2 terrasses. Côté nuit, on retrouve 1 grande suite parentale spacieuse et lumineuse avec accès à 2 terrasses, de nombreux placard et une salle d'eau privative avec WC pour 24m2. On retrouve ensuite 2 autres chambres lumineuses de 13m2 et 11m2 avec placards intégrés dont une avec accès à 1 terrasse, 1 salle de bain et 1 WC indépendant. Une 4ème chambre est possible, les plans sont modifiables.
L'appartement possède de grandes baies vitrées double vitrage en alu, la climatisation gainable dans chaque pièce, des carrelages et des faïences de qualité au choix, des volets roulants motorisés et une excellente isolation.
Un garage en sous-sol est compris.
Ne tardez plus et laissez vous porter par ce prestigieux appartement en rooftop avec son SPA. Livraison 4ème trimestre 2027. Garantie constructeur 10 ans.
Pour toutes informations complémentaires, contacter Théo Gandia - Agent commercial immobilier - O7 66 85 08 66 - noRSAC : 953 872 504 EI
121 m²
5 777 €
54 m²
5
4
1
1
2
3 sur 3
Sud
Est
Oui
1
2
Oui
Oui
Oui
Contact GANDIA
Contacter gratuitement à l'aide du formulaire ci-dessous.