Appartement Tassin La Demi Lune 4 pièces dernier étage Terrasse
Tassin-la-Demi-Lune 69160
0
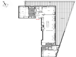
Dernière opportunité ! A Tassin, à proximité de la Mairie, Les Experts du Neuf vous propose à la vente ce Magnifique appartement T4 de 107,35m² avec Terrasse aux dernières normes comprenant : une entrée, un séjour avec cuisine donnant sur la terrasse de 75,13m², trois chambres, une salle de bain, deux salles d'eau et deux WC. Isolation phonique et thermique renforcés, faibles charges. Visuel non contractuel. L'appartement est vendu avec un stationnement en sous-sol. Merci de contacter votre conseiller Grégory pour plus d'informations Copropriété de 47 lots - dont 35 lots habitation. (Pas de procédure en cours). Charges annuelles : 1800 euros.