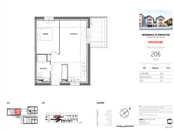
Située au coeur de la très prisée ville de Collonges-sous-Salève, cette résidence est composée de seulement 19 appartements, dans une ambiance cosy, pour des seniors actifs et dynamiques qui souhaitent rompre l'ennui, et vivre en toute liberté, à proximité des commerces et services. Véritable « alternative » à la résidence seniors, cette copropriété à taille humaine se compose d'appartements indépendants pour vivre en parfaite autonomie, et d'un « bistrot » partagé et de services collectifs pour vivre entouré avec un maximum de convivialité. Du T1 au T3, chaque appartement offre une atmosphère élégante et conviviale. Les T1 sont également proposés aux jeunes actifs, faisant de cette résidence un espace intergénérationnel où seniors et jeunes actifs cohabitent en harmonie. Il est également possible d'acquérir un garage ou une place de stationnement en sus. Bien soumis au statut de la copropriété - 19 lots d'habitation. LOTS DISPONIBLES DU T1 AU T3 Projet VEFA - DPE pas encore disponible. Livraison prévue sur le deuxième semestre 2026 Les informations sur les risques auxquels ce bien est exposé sont disponibles sur le site Géorisques : www.georisques.gouv.fr. Dossier complet sur demande. Contact : Emerick 07 63 07 83 55 Copropriété de 28 lots - dont 19 lots habitation.(Pas de procédure en cours). Emerick PASINI-SCHAUBHUT (EI) Agent Commercial - Numéro RSAC : 844 195 123 - Thonon-les-Bains.