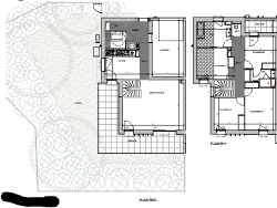
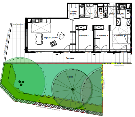
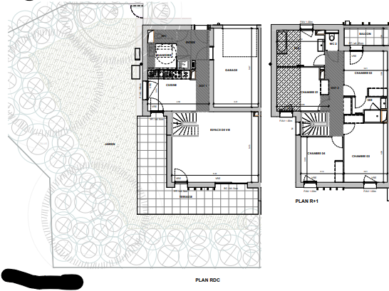
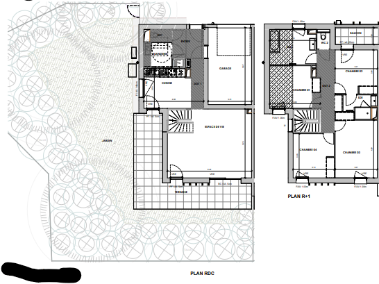
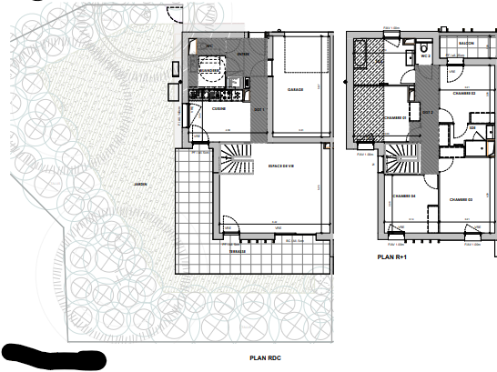
EN EXCLUSIVITÉ dans la commune de Saint Didier-au-Mont-d'Or, ce bel appartement climatisé de 93 m2 avec terrasse est situé en dernier étage dans une résidence récente de standing. Il est composé d'une pièce de vie de 34 m2 avec une cuisine améménagée et équipée ouverte, donnants sur une terrasse de 15 m2 avec vue dégagée, d'une suite avec salle de bains et toilettes, d'une 2e suite avec salle de douche et d'une 3e chambre pouvant également faire office de salle à manger. Un toilette supplémentaire indépendant, une buanderie et de nombreux rangements complètent ce bien confortable. Résidence sécurisée dans un environnement verdoyant à 500 m du centre. En annexe, un garage en sous-sol. Résidence sécurisée. Local à vélo. Copropriété de 15 lots d'habitation. Quote-part annuelle de 2600 EUR. ARLIM PRESTIGE SAXE. Gipsy Gauthier 06 80 66 72 19
93.04 m²
5 363 €
34 m²
4
3
1
1
2
2 sur 2
2017
Sud
Ouest
Oui
Oui
1
Oui
Oui
Oui (15 lots)
Consommations énergétiques
Logement économe
105
Logement énergivore (kWhEP/m2/an)
Émissions de gaz à effet de serre
Faible émission de GES
14
Forte émission de GES(kgeqCO2/m2/an)
Contact GAUTHIER
Contacter gratuitement à l'aide du formulaire ci-dessous.