Thonon les bains ! Je vous propose cet appartement T2 de 40m² environ au cinquième étage comprenant un hall d'entrée desservant un salon cuisine exposé est avec un balcon, une chambre, une salle de bains, un toilette ainsi qu'un box en sous-sol. La qualité de la résidence, ses prestations haut de gamme et son emplacement privilégié font de cette adresse à Thonon les bains une valeur sûre - Cet emplacement est également à proximité des commerces, des établissements scolaires et de toutes les commodités.
Disponibilité au 4ème trimestre 2025
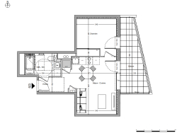
Autres configurations de distribution interne possibles, me contacter pour plus d'informations. Photos non contractuelles.
Pour visiter et vous accompagner dans votre projet, contactez Jérôme BLANDIN-SIKLI, au 0650851710 ou par courriel à j.blandinsikli@proprietes-privees.com
Selon l'article L.561.5 du Code Monétaire et Financier, pour l'organisation de la visite, la présentation d'une pièce d'identité vous sera demandée.
Cette présente annonce a été rédigée sous la responsabilité éditoriale de Jérôme BLANDIN-SIKLI agissant sous le statut d'agent commercial immatriculé au RSAC thonon les bains 483844122 auprès de la SAS PROPRIETES PRIVEES, au capital de 40 000 euros, ZAC LE CHÊNE FERRÉ - 44 ALLÉE DES CINQ CONTINENTS 44120 VERTOU; SIRET 487 624 777 00040, RCS Nantes. Carte professionnelle Transactions sur immeubles et fonds de commerce (T) et Gestion immobilière (G) n° CPI 4401 2016 000 010 388 délivrée par la CCI Nantes - Saint Nazaire. Compte séquestre n°30932508467 BPA SAINT-SEBASTIEN-SUR-LOIRE (44230) ; Garantie GALIAN - 89 rue de la Boétie, 75008 Paris - n°28137 J pour 2 000 000 euros pour T et 120 000 euros pour G. Assurance responsabilité civile professionnelle par MMA Entreprise n° de police 120.137.405
Mandat réf : 394 898. - Le professionnel garantit et sécurise votre projet immobilier.
Copropriété de 52 lots - dont 52 lots habitation. ().
Charges annuelles : 750 euros.
Jérôme BLANDIN-SIKLI (EI) Agent Commercial - Numéro RSAC : thonon les bains 483844122 - .
40 m²
5 775 €
20 m²
2
1
1
1
5 sur 6
2026
Aménagée
Ouest
Oui
Contact Jérôme BLANDIN-SIKLI
Contacter gratuitement à l'aide du formulaire ci-dessous.